Appartement - 28 m² - 1 pièce à Paris 16
favoris
290 000 €
Description :
Dans le quartier résidentiel de la Porte Dauphine, au sein d'un immeuble ancien des années 1920-1930, SIAMO vous présente un 2 pièces de 28,40 m2, situé au 1er étage avec ascenseur d'une copropriété bien entretenue de 31 lots principaux.
Idéalement situé, à 2 minutes du RER C (Henri Martin) et à 7 à 8 minutes du métro ligne 2 (Porte Dauphine), à proximité immédiate de toutes les commodités, cet appartement est traversant Est/Ouest.
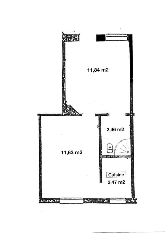
Il se compose d'un séjour avec cheminée, d'une chambre confortable de 11,70 m2, d'une cuisine, ainsi que d'une salle d'eau avec WC.
Une cave complète ce bien.
Amateurs de l'ancien, vous serez séduits par sa belle hauteur sous plafond, son cachet et son emplacement recherché.
Afficher plus de détails
Informations sur ce bien :
L'intérieur :
-
1 pièce
-
28 m²
-
1 Chambre
-
Cuisine séparée, équipéeInformations complémentairesSéparée, équipée
-
1 Salle d'eau
-
1 Toilette
-
Cave de 1 m²
L'extérieur :
-
Parking
Les équipements :
-
Ascenseur
-
Cheminée
-
Interphone
Autres :
-
Chauffage :Individuel, Radiateur, Électrique
-
Année de construction :1930
-
Exposition :Est, Ouest
-
Étage :1er étageInformations complémentairesNombre d'étages de la construction : 4
Copropriété :
-
Copropriété :Oui
-
Nombre de lots :31
-
Charges annuelles :1 100 €
Synthèse
Appartement à Paris 16
290 000 €
Surface :
28 m²
Prix au m² :
10 357 €
Transaction :
Achat
Référence :
NRV80001007
Mandat :
Exclusif
Date de publication :
Aujourd'hui à 09:22
Contacter l'annonceur
Performance énergétique
A
B
C
D
E
F
G
Gaz à effet de serre
A
B
C
D
E
F
G
Agent
SIAMO SAS
NAKACHE RUBEN
Mettre en avant cette annonce
Signaler une erreur
Localisation :
L'adresse exacte n'est pas renseignée. Le bien se situe dans cette zone.
Performance énergétique :
Logement économe
A
B
C
D
E
314
kWh/m²/an
12
kg CO₂/m²/an
F
G
Logement énergivore
Faible émission de CO₂
A
B
C
12
kg CO₂/m²/an
D
E
F
G
Forte émission de CO₂
Date du diagnostic :
17 décembre 2025
Estimation des coûts annuels d’énergie du logement :
880 €
à 1 230 €
Ventes d'appartements à proximité
- 136 ventes d'appartements à Saint-Ouen (2.5 km)
- 192 ventes d'appartements à Aubervilliers (3.2 km)
- 117 ventes d'appartements à Clichy (3.6 km)
- 3616 ventes d'appartements à Paris (4 km)
- 17 ventes d'appartements au Pré-Saint-Gervais (4 km)
- 25 ventes d'appartements à L'Île-Saint-Denis (4.5 km)
- 38 ventes d'appartements aux Lilas (5.1 km)
- 65 ventes d'appartements à Villeneuve-la-Garenne (5.2 km)
- 39 ventes d'appartements à La Courneuve (5.6 km)