Appartement - 33 m² - 2 pièces à Paris 15
favoris
360 000 €
Description :
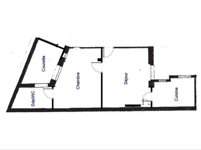
Boulevard Garibaldi 2pièces de 33,2 m² avec une cour privative.
Deux-pièces calme et fonctionnel donnant entièrement sur cour, avec cour privative.
Il se compose d'un séjour, d'une chambre, d'un grand placard/dressing, d'une cuisine indépendante et d'une salle d'eau avec WC.
Une cave complète ce bien.
Emplacement recherché, proche commerces et transports.
Afficher plus de détails
Informations sur ce bien :
L'intérieur :
-
2 pièces
-
33 m²
-
1 Chambre
-
Cuisine séparée, équipéeInformations complémentairesSéparée, équipée
-
1 Salle d'eau
-
1 Toilette
-
Séjour de 14 m²
-
1 Placard
-
Cave
L'extérieur :
-
Terrasse
-
Parking
Autres :
-
Chauffage :Électrique
-
Étage :RDCInformations complémentairesNombre d'étages de la construction : 1
Copropriété :
-
Charges annuelles :1 920 €
Synthèse
Appartement à Paris 15
360 000 €
Surface :
33 m²
Prix au m² :
10 909 €
Transaction :
Achat
Référence :
QSI375B
Mandat :
Exclusif
Date de publication :
Il y a plus de 7 jours
Contacter l'annonceur
Performance énergétique
A
B
C
D
E
F
G
Gaz à effet de serre
A
B
C
D
E
F
G
Agent
Quartier Seine Immobilier
Romain SIROT
Mettre en avant cette annonce
Signaler une erreur
Localisation :
L'adresse exacte n'est pas renseignée. Le bien se situe dans cette zone.
Performance énergétique :
Logement économe
A
B
C
D
E
F
G
648
kWh/m²/an
21
kg CO₂/m²/an
Logement énergivore
Faible émission de CO₂
A
B
C
21
kg CO₂/m²/an
D
E
F
G
Forte émission de CO₂
Date du diagnostic :
01 janvier 2015
Ventes d'appartements à proximité
- 87 ventes d'appartements à Vanves (2.2 km)
- 191 ventes d'appartements à Issy-les-Moulineaux (2.4 km)
- 43 ventes d'appartements à Malakoff (2.8 km)
- 116 ventes d'appartements à Montrouge (3.4 km)
- 261 ventes d'appartements à Boulogne-Billancourt (3.9 km)
- 101 ventes d'appartements à Châtillon (4.2 km)
- 3616 ventes d'appartements à Paris (4.6 km)
- 40 ventes d'appartements à Gentilly (4.9 km)
- 90 ventes d'appartements à Meudon (5.1 km)