Local commercial - 327 m² à Paris 15
favoris
8 784 € / mois
Description :
Au pied du métro Dupleix, dans un immeuble de standing, CONSULT'IM vous propose à la location, une boutique de 326m²
CARACTERISTIQUES DE L'OFFRE
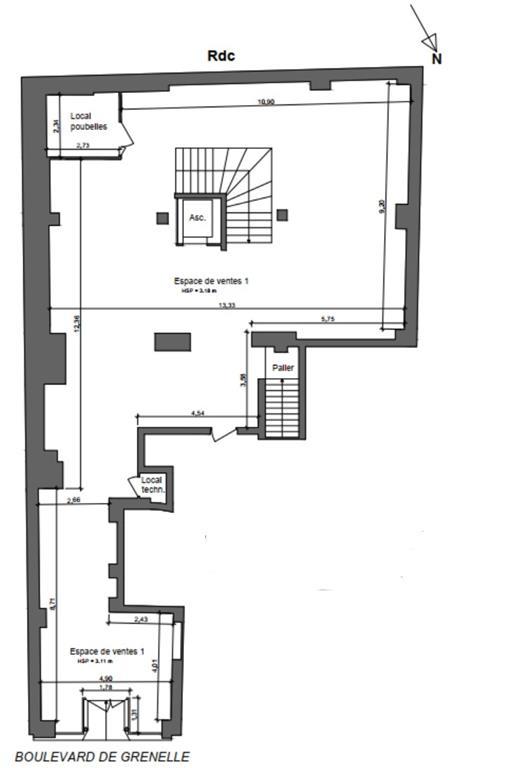
Au RDC, 181 m² comprenant un espace de vente, un local technique et un local poubelles.
Au sous-sol, 146 m² comprenant un espace de vente, deux réserves, un espace personnel avec bureau, vestiaires, sanitaires.
Le tout est relié par deux escaliers ou ascenseur.
Linéaire de vitrine de 5 mètres
Hauteur sous plafond 3,18 m
CONDITIONS FINANCIERES
Bail : 3/6/9 ansLoyer mensuel : 8 449 € HT/HC
Disponibilité : Après accord
Afficher plus de détails
Informations sur ce bien :
L'intérieur :
-
327 m²Informations complémentairesSurface commerciale : 327 m²
Synthèse
Local commercial à Paris 15
8 784 € / mois
Surface :
327 m²
Transaction :
Location (locaux professionnels)
Référence :
10317202
Charges :
335,99 €
Informations complémentaires
Les charges sont inclues dans le loyer affiché
Disponibilité :
22/10/2024
Date de publication :
Il y a plus de 7 jours
Contacter l'annonceur
Agent
CONSULT IM
Mettre en avant cette annonce
Signaler une erreur
Localisation :
L'adresse exacte n'est pas renseignée. Le bien se situe dans cette zone.
Locations de locaux commerciaux à proximité
- 1 location de local commercial à Vanves (2.2 km)
- 1 location de local commercial à Issy-les-Moulineaux (2.4 km)
- 2 locations de locaux commerciaux à Montrouge (3.4 km)
- 7 locations de locaux commerciaux à Boulogne-Billancourt (3.9 km)
- 389 locations de locaux commerciaux à Paris (4.6 km)
- 1 location de local commercial à Arcueil (5.2 km)
- 5 locations de locaux commerciaux à Fontenay-aux-Roses (5.8 km)
- 3 locations de locaux commerciaux à Puteaux (6.1 km)
- 3 locations de locaux commerciaux au Kremlin-Bicêtre (6.2 km)