Appartement - 73 m² - 3 pièces à Paris 13
favoris
546 000 €
Description :
Place Coluche Tolbiac / Alésia
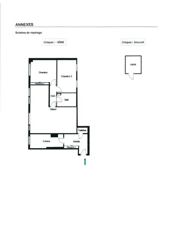
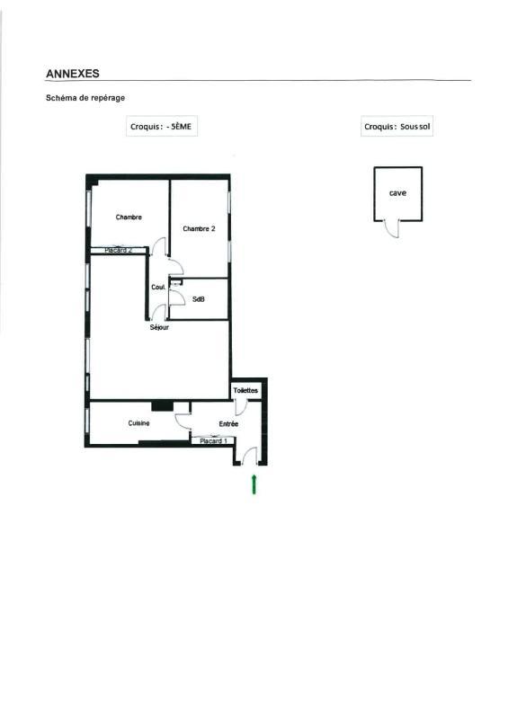
Dans une résidence sécurisée, au 5ème étage avec ascenseur, ORPI vous propose ce bel appartement 3/4 pièces d'environ 73 m² environ, composé d'un grand séjour lumineux ouvrant sur un balcon de 9 m² environ, de 2 chambres avec rangements (poss. 3), d'une cuisine indépendante aménagée et équipée (poss. US), d'une salle de bains et de WC séparés. Appartement LUMINEUX. Une cave complète ce bien. Actuellement loué : 2 027,73 € charges comprises, A voir !
Référence agence : 618
Afficher plus de détails
Informations sur ce bien :
L'intérieur :
-
3 pièces
-
73 m²Informations complémentairesSurface habitable : 73 m²
-
2 Chambres
-
1 Salle de bain
-
1 Toilette
-
Cave
L'extérieur :
-
Balcon
Les équipements :
-
Ascenseur
-
Tout à l'égout
-
Double vitrage
Autres :
-
Chauffage :Collectif, Au sol, Gaz
-
État :bon
-
Étage :5ème étageInformations complémentairesNombre d'étages de la construction : 6
Copropriété :
-
Charges annuelles :5 534,92 €
-
Taxe foncière :1 372 €
Synthèse
Appartement à Paris 13
546 000 €
Surface :
73 m²
Prix au m² :
7 479 €
Transaction :
Achat
Référence :
M3U8-KPG-AJW
Mandat :
Exclusif
Date de publication :
Il y a plus de 7 jours
Contacter l'annonceur
Performance énergétique
A
B
C
D
E
F
G
Gaz à effet de serre
A
B
C
D
E
F
G
Agent
Agence Bellissimmo
Mettre en avant cette annonce
Signaler une erreur
Localisation :
Performance énergétique :
Logement économe
A
B
C
D
E
299
kWh/m²/an
66
kg CO₂/m²/an
F
G
Logement énergivore
Faible émission de CO₂
A
B
C
D
E
66
kg CO₂/m²/an
F
G
Forte émission de CO₂
Date du diagnostic :
05 février 2026
Ventes d'appartements à proximité
- 46 ventes d'appartements à Gentilly (2.2 km)
- 32 ventes d'appartements au Kremlin-Bicêtre (2.3 km)
- 234 ventes d'appartements à Ivry-sur-Seine (2.9 km)
- 4122 ventes d'appartements à Paris (2.9 km)
- 61 ventes d'appartements à Arcueil (3.4 km)
- 135 ventes d'appartements à Montrouge (3.5 km)
- 134 ventes d'appartements à Villejuif (4.2 km)
- 86 ventes d'appartements à Charenton-le-Pont (4.4 km)
- 81 ventes d'appartements à Saint-Mandé (4.5 km)