Local commercial - 100 m² - 4 pièces à Paris 11
favoris
950 000 €
Description :
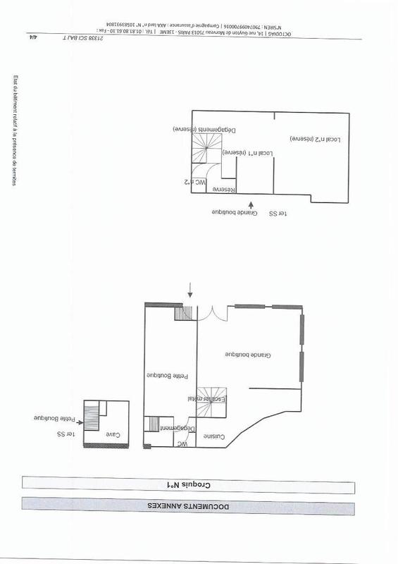
Murs de 2 boutiques sis au 119 rue de montreuil 75011 paris vue depuis la place de la nation via avenue des bouvines lot de 2 boutiques 1) grand local commercial occupé par mood lounge depuis 9 ans régulier et dont le bail est renouvelé actuellement 2950 euros passe au 1er juillet 2026 à 3100 euros ht et hc prix de vente 650.000 frais inclus 2) petit local commercial libre 1700 euros ht et hc pour 350000 euros frais inclus le tout pour 950000 euros frais inclus tres bon investissement 6% net diffuze : votre prestataire de diffusion d'annonces immobilières.
Afficher plus de détails
Informations sur ce bien :
L'intérieur :
-
4 pièces
-
100 m²Informations complémentairesSurface habitable : 100 m²
-
Cave
Autres :
-
Chauffage :Collectif, Gaz
-
Mitoyenneté :Non
Synthèse
Local commercial à Paris 11
950 000 €
Surface :
100 m²
Prix au m² :
9 500 €
Transaction :
Achat (professionnels)
Référence :
63-550eb1af
Date de publication :
Aujourd'hui à 08:49
Contacter l'annonceur
Performance énergétique
A
B
C
D
E
F
G
Gaz à effet de serre
A
B
C
D
E
F
G
Agent
Barnabé
Diffuze
Mettre en avant cette annonce
Signaler une erreur
Localisation :
Performance énergétique :
Logement économe
A
B
C
D
181 à 250
kWh/m²/an
7 à 11
kg CO₂/m²/an
E
F
G
Logement énergivore
Faible émission de CO₂
A
B
7 à 11
kg CO₂/m²/an
C
D
E
F
G
Forte émission de CO₂
Ventes de locaux commerciaux à proximité
- 516 ventes de locaux commerciaux à Paris (2.1 km)
- 5 ventes de locaux commerciaux à Saint-Mandé (3.2 km)
- 6 ventes de locaux commerciaux à Bagnolet (3.4 km)
- 7 ventes de locaux commerciaux au Pré-Saint-Gervais (3.5 km)
- 2 ventes de locaux commerciaux aux Lilas (3.9 km)
- 13 ventes de locaux commerciaux à Vincennes (4.4 km)
- 5 ventes de locaux commerciaux à Pantin (4.6 km)
- 21 ventes de locaux commerciaux à Montreuil (5 km)
- 5 ventes de locaux commerciaux à Charenton-le-Pont (5 km)