• Magasins - 161 m²
  • Magasins - 161 m²
  • Magasins - 161 m²
2 090 000 € HT
161 m²

Description :

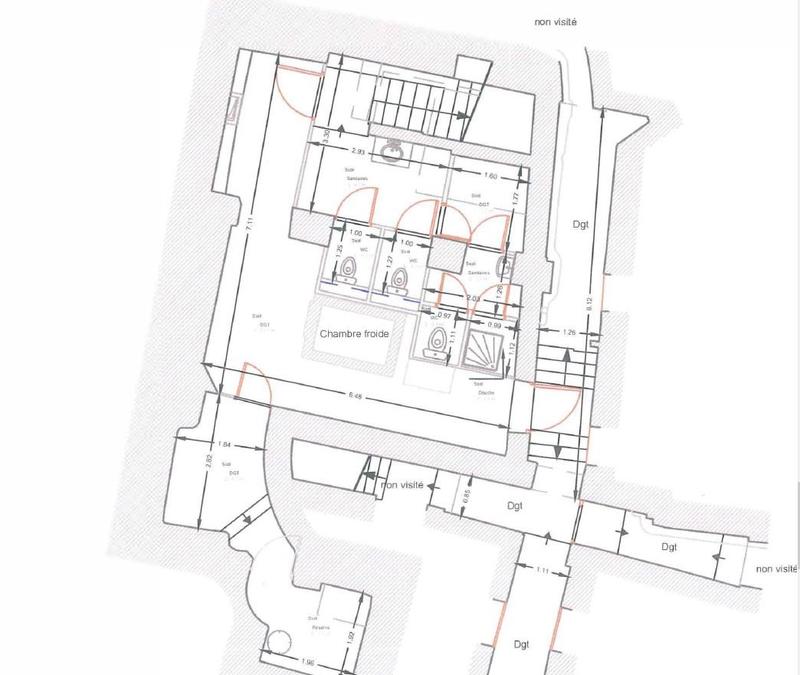
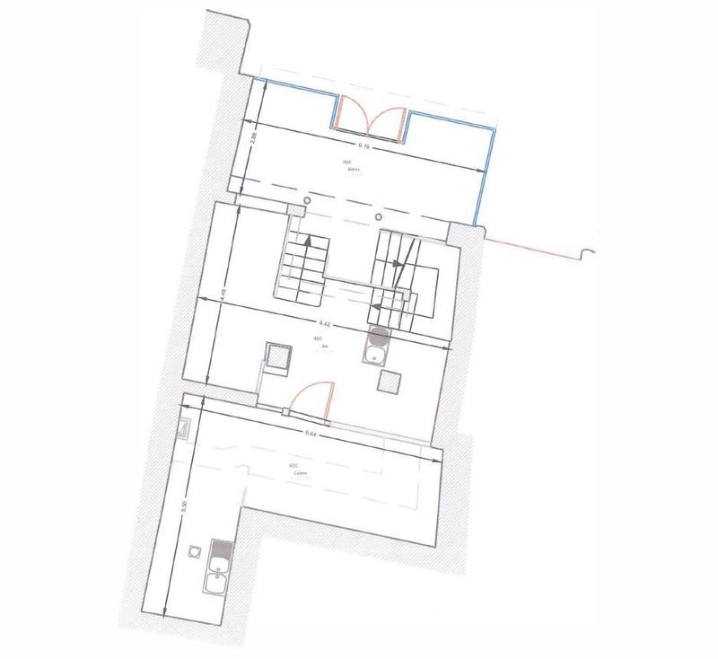
GIFOM - Vente Murs Commerciaux - Local Commercial-Boutique 161 m² - Quartier Les Halles / Louvre - Rivoli 75001 Paris.

Emplacement exceptionnel entre la rue Saint-Honoré et Louvre-Rivoli, au coeur du quartier animé des Halles, dans une rue très commerçante, vente murs de boutique libres d'un ancien restaurant refait à neuf avec une surface totale de 161 m² avec une façade de 7M comprenant : un RDC de 62 m², une mezzanine de 48 m² et un sous-sol de 51 m². Le local bénéficie d'une extraction professionnelle, idéal tous commerces. Possibilité de terrasse (16 places).
Contactez-nous pour plus d'informations ou pour organiser une visite.

Prix de vente : 2 090 000 € FAI.
Réf. Agence : VEMU 971.
GIFOM - Spécialiste en immobilier Commercial
Site internet : https://gifom.octissimo.com/

Afficher plus de détails

Informations sur ce bien :

L'intérieur :

  • 161 m²

L'extérieur :

  • Parking

Autres :

  • Étage :
    RDC
Synthèse
Magasins à Paris 1
2 090 000 € HT
Surface : 161 m²
Prix au m² : 12 981 €
Transaction :
Achat
Référence :
VEMU 971-GIFOM75
Date de publication :
Il y a plus de 7 jours
Magasins - 161 m²
Agent
GIFOM
Nicolas PORTALIER
Appeler
Écrire
Mettre en avant cette annonce
Signaler une erreur

Localisation :

Annonces similaires
Annonces immobilières récentes