Maison - 169 m² - 5 pièces à Orléans

favoris
  • Maison - 169 m² - 5 pièces
  • Maison - 169 m² - 5 pièces
  • Maison - 169 m² - 5 pièces
  • Maison - 169 m² - 5 pièces
  • Maison - 169 m² - 5 pièces
  • Maison - 169 m² - 5 pièces
  • Maison - 169 m² - 5 pièces
  • Maison - 169 m² - 5 pièces
  • Maison - 169 m² - 5 pièces
  • Maison - 169 m² - 5 pièces
  • Maison - 169 m² - 5 pièces
  • Maison - 169 m² - 5 pièces
  • Maison - 169 m² - 5 pièces
  • Maison - 169 m² - 5 pièces
  • Maison - 169 m² - 5 pièces
  • Maison - 169 m² - 5 pièces
234 990 €
169 m²
5 pièces
3 chambres

Description :

Située dans un quartier résidentiel paisible, cette maison individuelle libre de mitoyenneté offre de nombreuses possibilités d'aménagement. Idéale pour un projet de rénovation, une grande famille, une activité professionnelle, ou encore pour investissement locatif (2 logements possibles).

Caractéristiques principales :
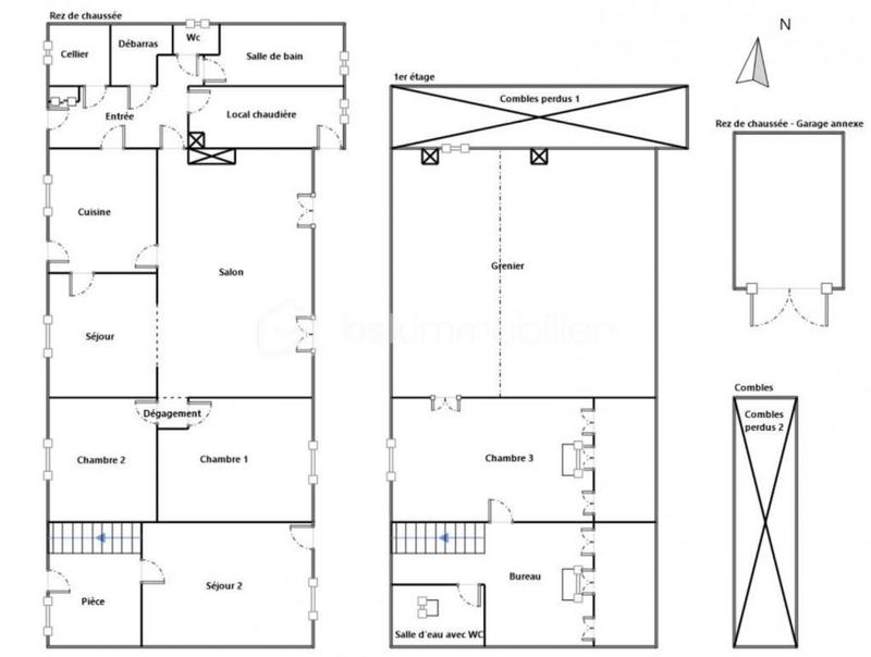
* Surface généreuse 169m2
* 3 chambres ,1 salle de bain avec baignoire et douche,1 salle d'eau
* Deux entrées distinctes permettant la création de 2 logements indépendants
* Beaucoup de travaux à prévoir
* Parcelle privative avec jardin
* Maison non mitoyenne
* Stationnement facile
* Environnement calme et résidentiel

Les + du bien :
* Maison divisible en deux logements (partie déjà semi-indépendante)
* Projet idéal pour investisseur ou famille souhaitant créer un revenu locatif
* Travaux à prévoir = fort potentiel de valorisation
* Proche transports ( bus/tram), commerces, écoles et axes routiers (tangentielle à proximité)
* Gare SNCF 7min en vélo (les Aubrais et Orléans)
* Accessibilité centre ville / forêt d'Orléans =10min en vélo

Visite virtuelle sur demande

Cette annonce référence 291844 vous est présentée par votre agent commercial BSK Immobilier CHRISTOPHE AZZOUG (EI) immatriculé au RSAC de ORLEANS (45000) sous le numéro 92080739300011.

Prix du bien : 234 990,00 €
Les honoraires d'agence sont à la charge du vendeur.

A propos des performances énergétiques :
Date de réalisation du diagnostic énergétique : 06/06/2025
Score DPE : 227 kWhEP/m²/an
Score GES : 65 kgepCO2/m²/an
Montant estimé des dépenses annuelles d'énergie pour un usage standard : entre 4670.00 € et 6390.00 € par an. Prix moyens des énergies indexés sur l'année 2023 (abonnements compris).

Les informations sur les risques auxquels ce bien est exposé sont disponibles sur le site Géorisques : www.georisques.gouv.fr

Afficher plus de détails

Informations sur ce bien :

L'intérieur :

  • 5 pièces
  • 169 m²
    Informations complémentaires
    Surface habitable : 169 m²
  • 3 Chambres
  • 1 Salle de bain
  • 1 Salle d'eau

Les équipements :

  • Cheminée

Autres :

  • Année de construction :
    1964
  • État :
    Travaux à prévoir
Synthèse
Maison à Orléans
234 990 €
Surface : 169 m²
Prix au m² : 1 390 €
Transaction :
Achat
Référence :
291844
Mandat :
Exclusif
Date de publication :
Il y a plus de 7 jours
Maison - 169 m² - 5 pièces
Performance énergétique
A
B
C
D
E
F
G
Gaz à effet de serre
A
B
C
D
E
F
G
Agent
BSK Immobilier
BSK Immobilier
CHRISTOPHE AZZOUG
Appeler
Écrire
Mettre en avant cette annonce
Signaler une erreur

Localisation :

Performance énergétique :

Logement économe
A
B
C
D
E
227
kWh/m²/an
65
kg CO₂/m²/an
F
G
Logement énergivore
Faible émission de CO₂
A
B
C
D
E
65
kg CO₂/m²/an
F
G
Forte émission de CO₂
Date du diagnostic : 06 juin 2025
Annonces similaires
Annonces immobilières récentes