• Bureau - 141 m² - 5 pièces
  • Bureau - 141 m² - 5 pièces
  • Bureau - 141 m² - 5 pièces
  • Bureau - 141 m² - 5 pièces
  • Bureau - 141 m² - 5 pièces
  • Bureau - 141 m² - 5 pièces
  • Bureau - 141 m² - 5 pièces
1 718 € / mois
141 m²
5 pièces

Description :

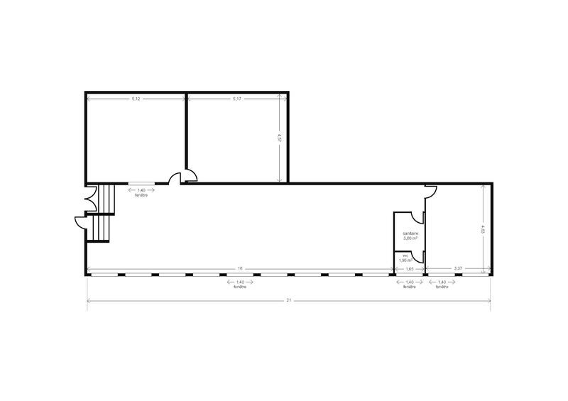
A quelques minutes du centre d'Orléans, quartier Gare, local commercial ou bureaux d'une surface de 141m² à vocation professionnelles, et à géométrie variable au 1er étage d'un immeuble, avec la possibilité de mutualiser les espaces.
Actuellement la surface est composée d'une grande pièce modulable, et de 3 autres pièces de 24, 24 et 15 m², un coin sanitaire.
Ce lieux peut accueillir des activités très diverses avec des possibles très intéressants, et des variantes d'espaces de travail, avec 4 parkings privatifs en journée.

Emplacement pratique à proximité de la station de tram Louis braille, de la gare, du réseau routier et des bus de la ville.
Espace très lumineux par ses nombreuses fenêtres donnant sur la rue. Certaines cloisons peuvent êtres édifiées entrent les pièces.
Libre de suite, les charges de chauffage, eau, sont comprises dans le prix.

Les honoraires d'agence sont à la charge du locataire, soit 2480,40€.
Le Diagnostic de Performance Énergétique(DPE) a été réalisé selon une méthode valable mais non fiable et non-opposable.
Les informations sur les risques auxquels ce bien est exposé sont disponibles sur le site Géorisques : www. georisques. gouv. fr.

Réseau Immobilier CAPIFRANCE - Votre agent commercial (RSAC N°833 606 700 - Greffe de ORLEANS) Valerie BURTE-DUPUY Entrepreneur Individuel 06 25 75 30 59 - Réf.913286

Afficher plus de détails

Informations sur ce bien :

L'intérieur :

  • 5 pièces
  • 141 m²

L'extérieur :

  • 2 Parkings
    Informations complémentaires
    Extérieur

Les équipements :

  • Ascenseur
  • Fibre optique

Autres :

  • Année de construction :
    1960
  • État :
    rénové
  • Étage :
    1er étage
    Informations complémentaires
    Nombre d'étages de la construction : 3

Copropriété :

  • Copropriété :
    Oui
  • Nombre de lots :
    5
  • Taxe foncière :
    3 232 €
Synthèse
Bureau à Orléans
1 718 € / mois
Surface : 141 m²
Transaction :
Location (locaux professionnels)
Référence :
340935216770
Charges :
569,32 €
Informations complémentaires
Les charges sont inclues dans le loyer affiché
Montant de la caution :
10 335,05 €
Honoraires :
2 480 €
Date de publication :
Il y a plus de 7 jours
Bureau - 141 m² - 5 pièces
Performance énergétique
A
B
C
D
E
F
G
Gaz à effet de serre
A
B
C
D
E
F
G
Agent
CAPIFRANCE
CAPIFRANCE
Madame Valerie BURTE-DUPUY
Appeler
Écrire
Mettre en avant cette annonce
Signaler une erreur

Localisation :

L'adresse exacte n'est pas renseignée. Le bien se situe dans cette zone.

Performance énergétique :

Logement économe
A
B
C
109
kWh/m²/an
28
kg CO₂/m²/an
D
E
F
G
Logement énergivore
Faible émission de CO₂
A
B
C
28
kg CO₂/m²/an
D
E
F
G
Forte émission de CO₂
Date du diagnostic : 23 mai 2019
Annonces similaires
Annonces immobilières récentes