Entrepôt - 920 m² à Nogent-le-Rotrou
Description :
28400 NOGENT LE ROTROU – LOCAL PROFESSIONNEL 920 m²
effiCity, l'agence leader de l'estimation en ligne vous propose ce local professionnel avec bail de location en cours sur un site sécurisé.
IDEAL INVESTISSEUR
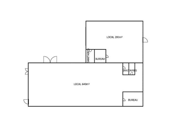
Ce bâtiment est divisé en 2 cellules.
-La première cellule d'une surface de 640m² se compose d'une vaste pièce principale et d'un bureau, d'une douche, d'un WC avec lave mains.
-La seconde cellule d'une surface de 280m² distribue une grande pièce principale, un bureau et des WC avec lave mains. Bail jusqu'à fin avril 2026.
Les atouts : Clôture grillagée plus barbelé – caméra de vidéosurveillance – chaque bâtiment dispose de ces propres compteurs eau et électricité
Les plus : 20 minutes de l'autoroute A11
Bonne rentabilité : 7%
Taxes foncières : 3900€
Pour les visites et les renseignements contactez : Alexandre Morel au 07.66.20.47.17 par mail : alexandremorel@efficity.com
Les informations sur les risques auxquels ce bien est exposé sont disponibles sur le site Georisque : georisques. gouv. fr
Alexandre Morel - EI - est Agent Commercial mandataire en immobilier, immatriculé au Registre Spécial des Agents Commerciaux du Tribunal de Commerce de Chartres sous le n°800925448.
Siège social du mandant : effiCity, 48 avenue de Villiers - 75017 PARIS - Société par Actions Simplifiée, société au capital de 132 373,05 euros, immatriculée au RCS Paris 497 617 746 et titulaire de la Carte professionnelle CPI 7501 2015 000 002 025 - CCI Paris IDF - Caisse de Garantie : GALIAN Assurances 89 rue de la Boétie 75008 Paris
Informations sur ce bien :
L'intérieur :
-
920 m²Informations complémentairesSurface d'activité : 920 m²
Les équipements :
-
Accès handicapé
Copropriété :
-
Taxe foncière :3 900 €
Localisation :
Vente de locaux d'activité et entrepôt à proximité
- 1 vente de local d'activité et entrepôt à Mainvilliers (49.5 km)
- 1 vente de local d'activité et entrepôt à Changé (54.8 km)
- 2 vente de locaux d'activité et entrepôt à Alençon (55.3 km)
- 4 vente de locaux d'activité et entrepôt au Mans (57.9 km)
- 3 vente de locaux d'activité et entrepôt à Dreux (61.3 km)
- 3 vente de locaux d'activité et entrepôt à Nagel-Séez-Mesnil (67.2 km)
- 1 vente de local d'activité et entrepôt à Conches-en-Ouche (71.7 km)
- 1 vente de local d'activité et entrepôt à Argentan (77.5 km)
- 2 vente de locaux d'activité et entrepôt à Guichainville (77.9 km)