• Duplex - 82 m² - 4 pièces
  • Duplex - 82 m² - 4 pièces
  • Duplex - 82 m² - 4 pièces
  • Duplex - 82 m² - 4 pièces
  • Duplex - 82 m² - 4 pièces
  • Duplex - 82 m² - 4 pièces
  • Duplex - 82 m² - 4 pièces
329 500 €
82 m²
4 pièces
3 chambres

Description :

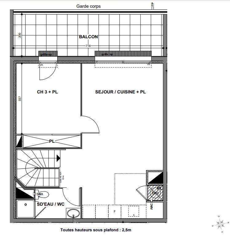
L appartement consiste en un T4 en Duplex de 82 m² le tout au 3eme et dernier étage de la residence
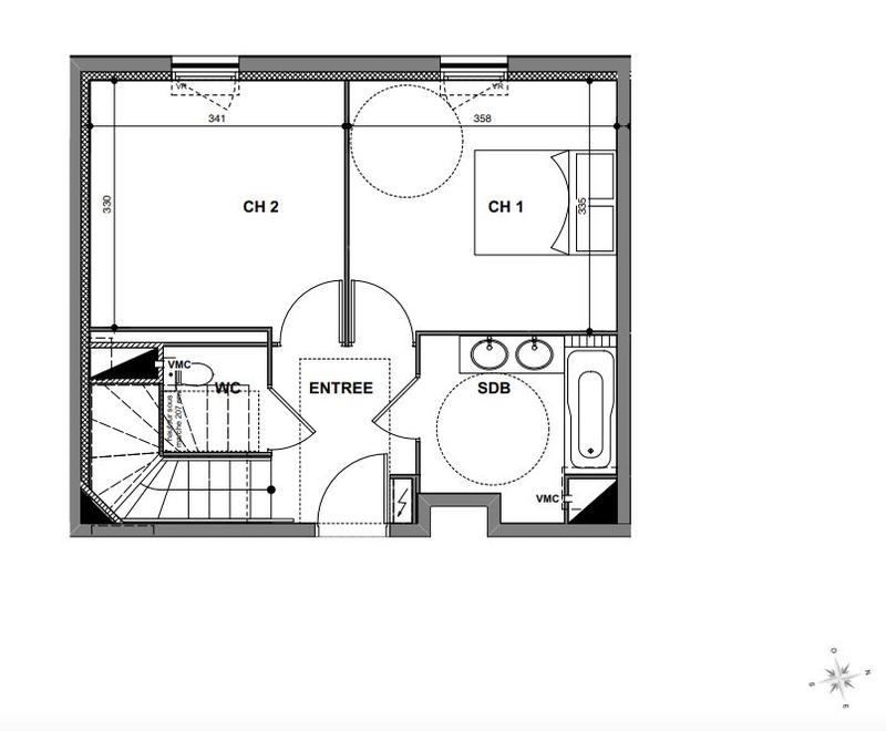
Il y a trois chambres dont une à l etage et qui dessert au Balcon de 14 m².

Les toilettes et la salle d eau ne sont pas independant

Le centre-ville est à proximite, sans agitation, avec des commerces et des ecoles et colleges à proximite.

N'hesitez pas a nous contacter au 0664639783 ou au 0466676948 ou nous ecrire directement sur notre site internet imonah.fr pour obtenir de plus amples informations.

Dans une copropriété de 24 lots. Aucune procédure n'est en cours. Non soumis au DPE. Les informations sur les risques auxquels ce bien est exposé sont disponibles sur le site Géorisques : georisques.gouv.fr.

Afficher plus de détails

Informations sur ce bien :

L'intérieur :

  • 4 pièces
  • 82 m²
  • 3 Chambres
  • 1 Salle d'eau
  • 1 Toilette
  • Séjour de 30 m²

L'extérieur :

  • Balcon de 14 m²
  • Parking
  • 2 Box

Les équipements :

  • Accès handicapé

Autres :

  • Année de construction :
    2025
  • Exposition :
    Ouest, Nord
  • Étage :
    3ème étage (dernier)
    Informations complémentaires
    Nombre d'étages de la construction : 3

Copropriété :

  • Copropriété :
    Oui
  • Nombre de lots :
    24
Synthèse
Duplex à Nîmes
329 500 €
Surface : 82 m²
Prix au m² : 4 018 €
Transaction :
Achat
Référence :
VA2150-IMONAH
Date de publication :
Il y a plus de 7 jours
Duplex - 82 m² - 4 pièces
Agent
Imonah
Imonah
Appeler
Écrire
Mettre en avant cette annonce
Signaler une erreur

Localisation :

L'adresse exacte n'est pas renseignée. Le bien se situe dans cette zone.

Performance énergétique :

Bien non soumis au Diagnostic de Performance Énergétique (DPE)

Annonces similaires
Annonces immobilières récentes