• Appartement - 59 m² - 3 pièces
  • Appartement - 59 m² - 3 pièces
  • Appartement - 59 m² - 3 pièces
  • Appartement - 59 m² - 3 pièces
  • Appartement - 59 m² - 3 pièces
  • Appartement - 59 m² - 3 pièces
  • Appartement - 59 m² - 3 pièces
  • Appartement - 59 m² - 3 pièces
279 000 €
59 m²
3 pièces
2 chambres

Description :

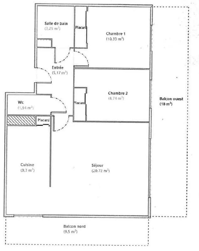
Situé dans le quartier de Sainte-Marguerite, au sein d'une copropriété fermée et sécurisée des années 1990, à proximité immédiate de toutes les commodités, bel appartement 3 pièces de 60 m², idéalement distribué et au calme absolu.

Il s'ouvre sur une agréable pièce de vie de 30 m² avec cuisine ouverte, prolongée par deux terrasses de 18 m² et 10 m². L'espace nuit comprend deux chambres, une salle de bains ainsi qu'un WC indépendant.

Une cave en sous-sol et une place de stationnement privative extérieure complètent ce bien.

L'appartement bénéficie d'un environnement résidentiel et paisible, à proximité des commerces, transports en commun, écoles et jardins, avec un accès rapide à l'autoroute et à l'aéroport.

« Les informations sur les risques auxquels ce bien est exposé sont disponibles sur le site Géorisques : georisques.gouv.fr. »
Les informations sur les risques auxquels ce bien est exposé sont disponibles sur le site Géorisques : www. georisques. gouv. fr

Afficher plus de détails

Informations sur ce bien :

L'intérieur :

  • 3 pièces
  • 59 m²
    Informations complémentaires
    Surface habitable : 60 m²
  • 2 Chambres
  • 1 Salle de bain
  • 1 Toilette

L'extérieur :

  • Terrasse

Les équipements :

  • Ascenseur
  • Tout à l'égout
  • Accès handicapé
  • Fibre optique
  • Double vitrage
  • Interphone

Autres :

  • Chauffage :
    Individuel, Radiateur, Gaz
  • État :
    Bon état
  • Exposition :
    Nord-ouest
  • Vue :
    Verdure,Dégagée
  • Étage :
    2nd étage
    Informations complémentaires
    Nombre d'étages de la construction : 4

Copropriété :

  • Charges annuelles :
    143 €
  • Taxe foncière :
    1 372 €
Synthèse
Appartement à Nice
279 000 €
Surface : 59 m²
Prix au m² : 4 729 €
Transaction :
Achat
Référence :
86786689G
Mandat :
Exclusif
Date de publication :
Aujourd'hui à 09:09
Appartement - 59 m² - 3 pièces
Performance énergétique
A
B
C
D
E
F
G
Gaz à effet de serre
A
B
C
D
E
F
G
Agent
LE CEDRE IMMO
LE CEDRE IMMO
Severine FERRAND
Appeler
Écrire
Mettre en avant cette annonce
Signaler une erreur

Localisation :

L'adresse exacte n'est pas renseignée. Le bien se situe dans cette zone.

Performance énergétique :

Logement économe
A
B
C
103
kWh/m²/an
21
kg CO₂/m²/an
D
E
F
G
Logement énergivore
Faible émission de CO₂
A
B
C
21
kg CO₂/m²/an
D
E
F
G
Forte émission de CO₂
Date du diagnostic : 06 janvier 2026
Annonces similaires
Annonces immobilières récentes