• Appartement - 96 m² - 4 pièces
  • Appartement - 96 m² - 4 pièces
  • Appartement - 96 m² - 4 pièces
  • Appartement - 96 m² - 4 pièces
  • Appartement - 96 m² - 4 pièces
  • Appartement - 96 m² - 4 pièces
  • Appartement - 96 m² - 4 pièces
  • Appartement - 96 m² - 4 pièces
  • Appartement - 96 m² - 4 pièces
  • Appartement - 96 m² - 4 pièces
  • Appartement - 96 m² - 4 pièces
  • Appartement - 96 m² - 4 pièces
485 000 €
96 m²
4 pièces
3 chambres

Description :

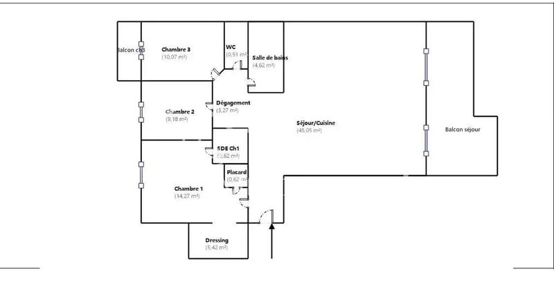
NICE GORBELLA – 4 PIÈCES TRAVERSANT EN EXCELLENT ÉTAT – 96 m² + BALCON 10 m²

À deux pas de la Villa Arson et du tramway, dans une résidence bien entretenue de 1974, découvrez ce superbe 4 pièces traversant de 96 m², situé au 1er étage surélevé.

L’appartement, lumineux et parfaitement agencé, se compose d’un vaste séjour avec cuisine américaine équipée de 45 m², ouvrant sur un balcon de 10 m² exposé au calme.
La partie nuit offre 3 belles chambres, une salle de bains, une salle de douche, un WC indépendant ainsi que de nombreux rangements.

En excellent état général, ce bien séduira par ses volumes, sa luminosité et sa proximité immédiate des commerces, écoles et transports.

Une cave en sous-sol complète ce bien.
Stationnement facile dans le quartier.

🔹 Surface : 96 m²
🔹 Balcon : 10 m²
🔹 Étage : 1er surélevé
🔹 Classe énergie : C
🔹 Copropriété : 258 lots

À visiter sans tarder — idéal famille ou résidence principale !

Afficher plus de détails

Informations sur ce bien :

L'intérieur :

  • 4 pièces
  • 96 m²
    Informations complémentaires
    Surface Carrez : 96 m²
  • 3 Chambres
    Informations complémentaires
    Chambre 1 : Surface de 14 m²
    Chambre 2 : Surface de 9 m²
    Chambre 3 : Surface de 10 m²
  • 1 Salle de bain de 5 m²
  • 1 Salle d'eau de 3 m²
  • 1 Toilette de 1 m²
  • Dressing de 5 m²
  • 1 Placard de 1 m²
  • Cave de 4 m²

L'extérieur :

  • 2 Balcons
    Informations complémentaires
    Balcon 1 : Surface de 2 m²
    Balcon 2 : Surface de 10 m²

Les équipements :

  • Ascenseur
  • Tout à l'égout
  • Climatisation
  • ADSL
  • Fibre optique
  • Double vitrage
  • Interphone

Autres :

  • Chauffage :
    Individuel, Climatisation, Électrique
  • Eau chaude :
    Collectif, Chaudière
  • Style :
    Récent
  • État :
    Excellent état
  • Étage :
    1er étage
    Informations complémentaires
    Nombre d'étages de la construction : 5

Copropriété :

  • Nombre de lots :
    87
  • Charges annuelles :
    3 240 €
Synthèse
Appartement à Nice
485 000 €
Surface : 96 m²
Prix au m² : 5 052 €
Transaction :
Achat
Date de publication :
Il y a plus de 7 jours
Appartement - 96 m² - 4 pièces
Performance énergétique
A
B
C
D
E
F
G
Gaz à effet de serre
A
B
C
D
E
F
G
Agent
HBM immobilier
HBM immobilier
Benjamin HENOU
Appeler
Écrire
Mettre en avant cette annonce
Signaler une erreur

Localisation :

L'adresse exacte n'est pas renseignée. Le bien se situe dans cette zone.

Performance énergétique :

Logement économe
A
B
C
131
kWh/m²/an
17
kg CO₂/m²/an
D
E
F
G
Logement énergivore
Faible émission de CO₂
A
B
C
17
kg CO₂/m²/an
D
E
F
G
Forte émission de CO₂
Date du diagnostic : 13 octobre 2025
Annonces similaires
Annonces immobilières récentes