• Appartement - 67 m² - 3 pièces
  • Appartement - 67 m² - 3 pièces
  • Appartement - 67 m² - 3 pièces
  • Appartement - 67 m² - 3 pièces
  • Appartement - 67 m² - 3 pièces
  • Appartement - 67 m² - 3 pièces
  • Appartement - 67 m² - 3 pièces
  • Appartement - 67 m² - 3 pièces
  • Appartement - 67 m² - 3 pièces
  • Appartement - 67 m² - 3 pièces
  • Appartement - 67 m² - 3 pièces
  • Appartement - 67 m² - 3 pièces
355 000 €
67 m²
3 pièces
2 chambres

Description :

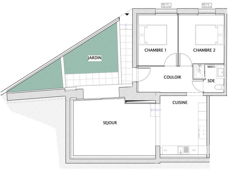
Dans une résidence récente et sécurisée, idéalement située à deux pas du CHU de l'Archet, découvrez ce charmant 3 pièces en rez-de-jardin alliant confort et calme.

L'appartement de 67,2 m² se compose :

- d'une grande pièce à vivre avec une partie salon séjour bien distincte de la cuisine ouverte,
- de deux chambres,
- d'une salle d'eau moderne,
- et d'un jardinet privatif de 21 m², parfait pour les moments de détente ou repas en extérieur.

Ce bien est vendu avec une place de stationnement !

Entièrement rénové avec des matériaux de qualité,
Calme et lumineux
Proximité immédiate CHU,

Idéal résidence principale

Une vidéo est disponible pour ce bien.

Les informations sur les risques auxquels ce bien est exposé sont disponibles sur le site Géorisques : www.georisques.gouv.fr.

Afficher plus de détails

Informations sur ce bien :

L'intérieur :

  • 3 pièces
  • 67 m²
    Informations complémentaires
    Surface habitable : 67 m²
  • 2 Chambres
  • Cuisine équipée
    Informations complémentaires
    Équipée
  • 1 Salle d'eau
  • 1 Toilette

L'extérieur :

  • Jardin
  • Terrasse

Autres :

  • Chauffage :
    Individuel, Pompe à chaleur
  • État :
    excellent état

Copropriété :

  • Copropriété :
    Oui
  • Nombre de lots :
    14
Synthèse
Appartement à Nice
355 000 €
Surface : 67 m²
Prix au m² : 5 299 €
Transaction :
Achat
Référence :
25-049-8
Date de publication :
Il y a plus de 7 jours
Appartement - 67 m² - 3 pièces
Agent
KELLER WILLIAMS MASSENA
KELLER WILLIAMS MASSENA
Laure ALBERT
Appeler
Écrire
Mettre en avant cette annonce
Signaler une erreur

Localisation :

Annonces similaires
Annonces immobilières récentes