• Duplex - 78 m² - 4 pièces
  • Duplex - 78 m² - 4 pièces
  • Duplex - 78 m² - 4 pièces
  • Duplex - 78 m² - 4 pièces
  • Duplex - 78 m² - 4 pièces
  • Duplex - 78 m² - 4 pièces
540 000 €
78 m²
4 pièces
3 chambres

Description :

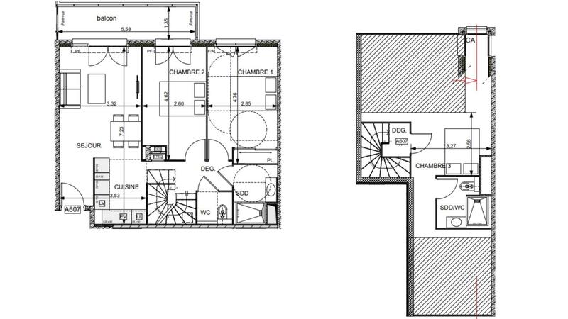
Iad France - Sarah Rozière (06 99 86 19 42) vous propose : Duplex 4 pièces avec balcon à Nice. Située rue du Docteur Ardoin à Nice, la résidence Nissa’Nova s’intègre dans un quartier central en pleine évolution. À proximité immédiate des commerces, des transports et du centre-ville, cette adresse offre un cadre de vie pratique et agréable, à quelques minutes du port et des plages. Disponible 2026. Un appartement raffiné : Situé au 6 ème étage, cet appartement 4 pièces en duplex de 78 m² environ habitables se prolonge par un balcon de 8 m² environ. - Séjour / cuisine de 23 m² environ. - Trois chambres confortables. - Deux salles d’eau modernes. - Annexe incluse : un parking intérieur. De belles prestations : - Chauffage individuel électrique avec thermostat programmable. - Volets roulants motorisés et menuiseries PVC double vitrage. - Résidence sécurisée avec digicode, visiophone et ascenseur. L’art de vivre à Nice : - Gare Nice-Riquier et tramway accessibles à pied. - Commerces, écoles et services à proximité immédiate. - À quelques minutes du port, de la place du Pin et du Vieux-Nice. N’hésitez pas à me contacter pour plus d’informations ou pour un accompagnement sur mesure. Honoraires d’agence à la charge du vendeur. Bien non soumis au DPE. Les informations sur les risques auxquels ce bien est exposé sont disponibles sur le site Géorisques : www.georisques.gouv.fr. La présente annonce immobilière a été rédigée sous la responsabilité éditoriale de Mlle Sarah Rozière EI (ID 83696), mandataire indépendant en immobilier (sans détention de fonds), agent commercial de la SAS I@D France immatriculé au RSAC de Clermont-Ferrand sous le numéro 978616993, titulaire de la carte de démarchage immobilier pour le compte de la société I@D France SAS. Retrouvez tous nos biens sur notre site internet. www.iadfrance.fr.

Afficher plus de détails

Informations sur ce bien :

L'intérieur :

  • 4 pièces
  • 78 m²
    Informations complémentaires
    Surface habitable : 78 m²
  • 3 Chambres
  • Cuisine

L'extérieur :

  • Parking

Les équipements :

  • Ascenseur
  • Interphone
  • Digicode
  • Gardien

Autres :

  • Chauffage :
    Individuel, Radiateur, Électrique
  • Mitoyenneté :
    Non
  • Étage :
    6ème étage (dernier)
    Informations complémentaires
    Nombre d'étages de la construction : 6
Synthèse
Duplex à Nice
540 000 €
Surface : 78 m²
Prix au m² : 6 923 €
Transaction :
Achat
Référence :
1858109
Date de publication :
Il y a plus de 7 jours
Duplex - 78 m² - 4 pièces
Agent
iad france
iad france
Sarah Rozière
Appeler
Écrire
Mettre en avant cette annonce
Signaler une erreur

Localisation :

L'adresse exacte n'est pas renseignée. Le bien se situe dans cette zone.
Annonces similaires
Annonces immobilières récentes