Local commercial - 325 m² à Nice
Description :
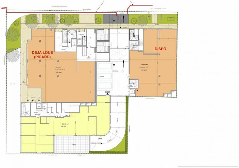
DERNIER LOT : Local commercial neuf de 325 m2 situé sur le programme NICEO. Situé sur l'axe central du nouveau quartier de Nice Saint Isidore.Tres nombreux progammes immobiliers en cours : pres de 10 au total. Le tramway permet de se rendre en centre ville de Nice en quelques minutes. Proximité immédiate du centre commercial LECLERC, du magasin IKEA et du centre commercial Nice Valley. Quartier en plein développement. Ce programme compte deux cellules commerciales : la première a été loué à l'enseigne PICARD (436m2) a ouvert en Avril 2023 / La cellule de 325 m2 est la dernière opportunité pour s'installer à coté des deux locomotives que sont PICARD et LECLERC ....Possibilité de parkings en sous sols (1400Euros HT/AN l'unité), disponibles pour les clients car accessible pendant les horaires d'ouverture des commerces.Possibilité de création d'un restaurant ou d'une boulangerie car extraction et terrasse extérieure possibles.
- Type de bail : Commercial
- Durée : 3/6/9 ans
- Fiscalité : TVA
- Indice : ILC
- Indexation : Annuelle
- Dépôt de garantie : 3 mois
- Loyers et charges : Trimestriels et d'avance
Informations sur ce bien :
L'intérieur :
-
325 m²Informations complémentairesSurface commerciale : 325 m²
Copropriété :
-
Taxe foncière :5 525 €
Localisation :
Locations de locaux commerciaux à proximité
- 1 location de local commercial à Colomars (6.8 km)
- 16 locations de locaux commerciaux à Saint-Laurent-du-Var (7.1 km)
- 2 locations de locaux commerciaux à La Gaude (8.9 km)
- 9 locations de locaux commerciaux à Cagnes-sur-Mer (10.5 km)
- 2 locations de locaux commerciaux à Vence (12.1 km)
- 1 location de local commercial à Peillon (12.2 km)
- 3 locations de locaux commerciaux à Villeneuve-Loubet (12.6 km)
- 4 locations de locaux commerciaux à La Colle-sur-Loup (13 km)
- 1 location de local commercial à Beausoleil (13.4 km)