• Appartement - 39 m² - 2 pièces
  • Appartement - 39 m² - 2 pièces
  • Appartement - 39 m² - 2 pièces
  • Appartement - 39 m² - 2 pièces
  • Appartement - 39 m² - 2 pièces
  • Appartement - 39 m² - 2 pièces
  • Appartement - 39 m² - 2 pièces
  • Appartement - 39 m² - 2 pièces
  • Appartement - 39 m² - 2 pièces
  • Appartement - 39 m² - 2 pièces
139 300 €
39 m²
2 pièces
1 chambre

Description :

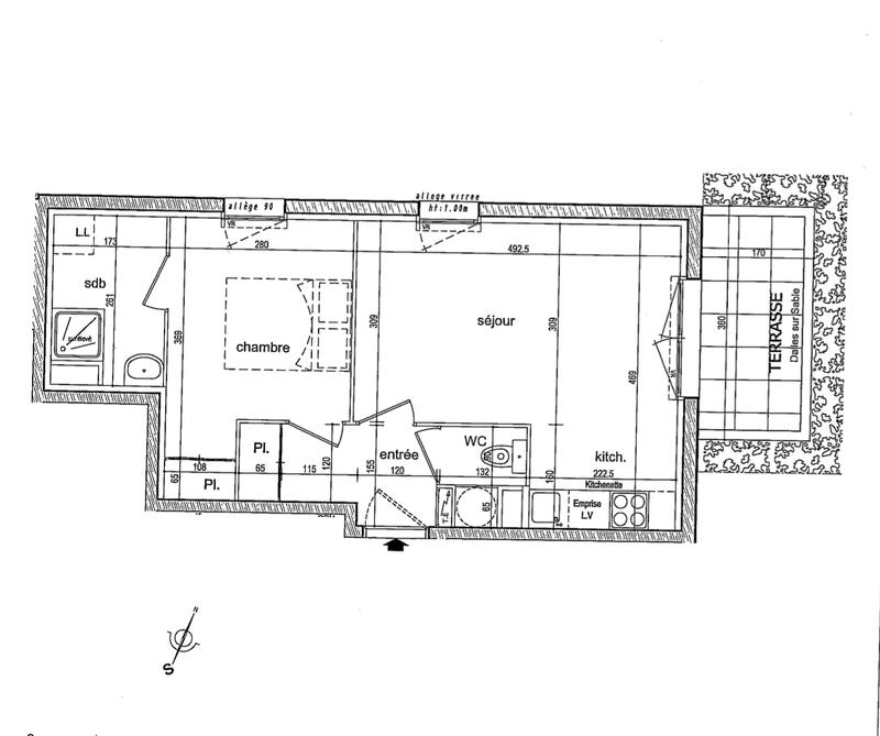
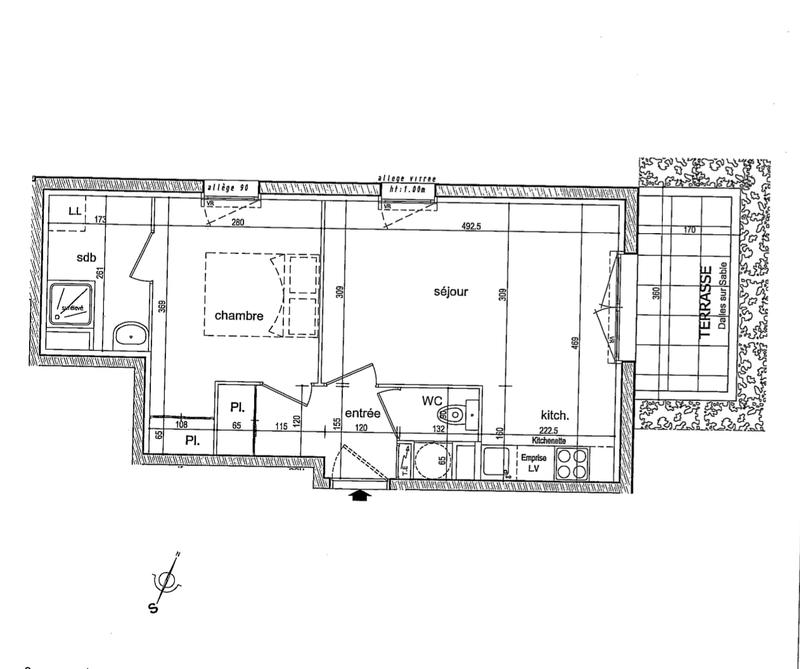
Iad France - Marine Joannis vous propose : T2 avec terrasse privative et parking – Nantes Michelet / Petit Port À 100 m du tram et à deux pas des facs, découvrez ce T2 en rez-de-jardin avec terrasse. Situé dans une résidence récente (2008) en cours de ravalement, cet appartement de 38 m² propose une configuration fonctionnelle avec une vraie chambre et une belle pièce de vie. Son atout charme : un petite extérieur à aménager à votre goût. L’entrée, avec placard intégré, dessert une pièce de vie lumineuse, orientée Est et Nord, avec accès direct à une terrasse privative, parfaite pour créer un coin détente. Le coin cuisine est aménagé et fonctionnel, avec meubles haut et bas. Côté nuit, on poursuite la visite avec une chambre avec placard, une grande salle d’eau avec emplacement pour machine à laver, et des toilettes séparées. 
Une place de parking privative en sous-sol complète l’ensemble. La copropriété est bien entretenue, dispose d’un local à vélo, et le ravalement de façade est en cours (à la charge des vendeurs). Précédemment loué pour un montant de 660 € CC. Les points positifs : Ravalement de façade voté et payé par les vendeurs Chauffage électrique, double vitrage, volets roulants Proximité immédiate des commerces et transports (tram 2 Petit Port à 200m) DPE : D / GES : B Plus de photos disponibles sur demande. Vidéo disponible sur demande. La presente annonce immobiliere vise 2 lots situés dans une copropriété de 76 lots au total et ne faisant l'objet d'aucune procédure en cours citée à l'article L. 721-1 du code de la construction et de l'habitation. Montant moyen mensuel de charges déclaré par le vendeur : 98.67€ par mois (soit 1184 € annuel). Honoraires d'agence à la charge du vendeur. Information d'affichage énergétique sur ce bien : classe ENERGIE D indice 246 et classe CLIMAT B indice 7. Les informations sur les risques auxquels ce bien est exposé, y compris l'obligation légale de débroussaillement, sont disponibles sur le site Géorisques : http://www.georisques.gouv.fr. La présente annonce immobilière a été rédigée sous la responsabilité éditoriale de Mme Marine Joannis mandataire indépendant en immobilier (sans détention de fonds), agent commercial de la SAS I@D France immatriculé au RSAC de NANTES sous le numéro 892179755, titulaire de la carte de démarchage immobilier pour le compte de la société I@D France SAS.

Afficher plus de détails

Informations sur ce bien :

L'intérieur :

  • 2 pièces
  • 39 m²
    Informations complémentaires
    Surface habitable : 39 m²
  • 1 Chambre
  • Cuisine

L'extérieur :

  • Terrasse
  • Box

Les équipements :

  • Interphone
  • Digicode

Autres :

  • Chauffage :
    Individuel, Radiateur, Électrique
  • Année de construction :
    2008
  • Mitoyenneté :
    Non

Copropriété :

  • Copropriété :
    Oui
  • Nombre de lots :
    76
  • Charges annuelles :
    1 184 €
Synthèse
Appartement à Nantes
139 300 €
Surface : 39 m²
Prix au m² : 3 572 €
Transaction :
Achat
Référence :
1813097
Date de publication :
Il y a plus de 7 jours
Appartement - 39 m² - 2 pièces
Performance énergétique
A
B
C
D
E
F
G
Gaz à effet de serre
A
B
C
D
E
F
G
Agent
iad france
iad france
Marine Joannis
Appeler
Écrire
Mettre en avant cette annonce
Signaler une erreur

Localisation :

L'adresse exacte n'est pas renseignée. Le bien se situe dans cette zone.

Performance énergétique :

Logement économe
A
B
C
D
246
kWh/m²/an
7
kg CO₂/m²/an
E
F
G
Logement énergivore
Faible émission de CO₂
A
B
7
kg CO₂/m²/an
C
D
E
F
G
Forte émission de CO₂
Date du diagnostic : 06 mai 2025
Annonces similaires
Annonces immobilières récentes