• Appartement - 54 m² - 3 pièces
  • Appartement - 54 m² - 3 pièces
  • Appartement - 54 m² - 3 pièces
  • Appartement - 54 m² - 3 pièces
  • Appartement - 54 m² - 3 pièces
  • Appartement - 54 m² - 3 pièces
  • Appartement - 54 m² - 3 pièces
  • Appartement - 54 m² - 3 pièces
  • Appartement - 54 m² - 3 pièces
  • Appartement - 54 m² - 3 pièces
195 000 €
54 m²
3 pièces
2 chambres

Description :

Appartement 3 pièces – 55 m² – Quartier Charles III – Nancy centre

Bien rare sur le marché : appartement refait à neuf, entièrement meublé et équipé.

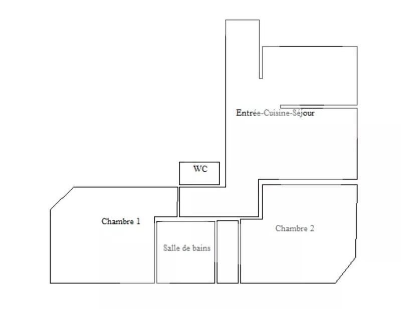
Agencement :

Cuisine équipée séparée par une verrière atelier, donnant sur le salon avec parquet

2 chambres avec placards

Salle d’eau

WC séparés

Les + :

Électroménager complet, avec four neuf

Climatisation dans toutes les pièces

Chauffe-eau neuf

Interphone

Finitions soignées

Localisation :

Quartier Charles III – centre-ville de Nancy

À proximité immédiate des commerces, transports et commodités

Informations complémentaires :

Charges de copropriété : 40 €/mois

Nombre de lots d’habitation : 5

Pour connaître les risques auxquels ce bien est exposé : www.georisques.gouv.fr

Afficher plus de détails

Informations sur ce bien :

L'intérieur :

  • 3 pièces
  • 54 m²
    Informations complémentaires
    Surface Carrez : 54 m²
  • 2 Chambres
  • 1 Salle d'eau
  • 1 Toilette
  • Salon
  • Cave

Les équipements :

  • Tout à l'égout
  • Climatisation
  • ADSL
  • Fibre optique
  • Double vitrage
  • Interphone

Autres :

  • Chauffage :
    Individuel, Climatisation, Électrique
    Informations complémentaires
    Thermostat :
  • Eau chaude :
    Individuel, Chauffe-eau
  • État :
    Bon état
  • Exposition :
    Sud
  • Vue :
    Dégagée, Ville, jardin, ciel
  • Étage :
    2nd étage
    Informations complémentaires
    Nombre d'étages de la construction : 3
  • Nombre de niveaux :
    1

Copropriété :

  • Charges annuelles :
    480 €
  • Taxe foncière :
    844 €
Synthèse
Appartement à Nancy
195 000 €
Surface : 54 m²
Prix au m² : 3 611 €
Transaction :
Achat
Référence :
86367670
Date de publication :
Il y a plus de 7 jours
Appartement - 54 m² - 3 pièces
Performance énergétique
A
B
C
D
E
F
G
Gaz à effet de serre
A
B
C
D
E
F
G
Agent
CityLife Nancy
CityLife Nancy
Karine CHARPENTIER
Appeler
Écrire
Mettre en avant cette annonce
Signaler une erreur

Localisation :

L'adresse exacte n'est pas renseignée. Le bien se situe dans cette zone.

Performance énergétique :

Logement économe
A
B
C
D
183
kWh/m²/an
6
kg CO₂/m²/an
E
F
G
Logement énergivore
Faible émission de CO₂
A
6
kg CO₂/m²/an
B
C
D
E
F
G
Forte émission de CO₂
Date du diagnostic : 22 juin 2025
Annonces similaires
Annonces immobilières récentes