• Maison - 150 m² - 5 pièces
  • Maison - 150 m² - 5 pièces
523 750 €
150 m²
5 pièces
3 chambres

Description :

Maison à vendre avec projet immobilier – Centre-ville de Muret 31600

EffiCity, l'agence qui estime votre bien en ligne, vous propose en exclusivité une opportunité immobilière rare en plein centre-ville de Muret.

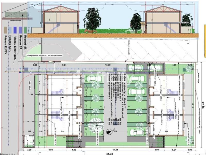
Sur un terrain de 1 000 m², idéalement situé et parfaitement desservi (commerces, transports, écoles à proximité immédiate), ce bien se distingue par son fort potentiel de développement immobilier.

Projet immobilier clé en main :
Un permis de construire validé par la mairie autorise la réalisation de 6 maisons en R+1, pour une emprise au sol totale de 336 m².
Un projet optimisé, prêt à être lancé, idéal pour promoteurs, investisseurs ou marchands de biens à la recherche d'un emplacement stratégique en cœur de ville.

Bâti existant :
Le terrain comprend actuellement une maison d'environ 150 m² habitables, offrant plusieurs possibilités : conservation, transformation ou démolition selon la stratégie du projet.

Atouts majeurs :

Permis de construire accordé
Emplacement centre-ville très recherché
Forte demande locative et résidentielle sur le secteur
Accès rapide aux axes routiers et transports
Projet rentable dans une commune dynamique de la métropole toulousaine

Muret – Centre-ville
Une opportunité rare alliant sécurité administrative et potentiel de valorisation élevé.

Pour plus d'informations ou pour organiser une visite, contactez-nous dès maintenant.
Les informations sur les risques auxquels ce bien est exposé sont disponibles sur le site Georisque : georisques. gouv. fr
Btissame Hamdane - EI - est Agent Commercial mandataire en immobilier, immatriculé au Registre Spécial des Agents Commerciaux du Tribunal de Commerce de Toulouse sous le n°514617521.
Siège social du mandant : effiCity, 48 avenue de Villiers - 75017 PARIS - Société par Actions Simplifiée, société au capital de 132 373,05 euros, immatriculée au RCS Paris 497 617 746 et titulaire de la Carte professionnelle CPI 7501 2015 000 002 025 - CCI Paris IDF - Caisse de Garantie : GALIAN Assurances 89 rue de la Boétie 75008 Paris

Afficher plus de détails

Informations sur ce bien :

L'intérieur :

  • 5 pièces
  • 150 m²
    Informations complémentaires
    Surface habitable : 150 m²
  • 3 Chambres
  • 1 Salle de bain
  • Cave

L'extérieur :

  • Jardin
  • Terrasse
  • Parking
  • Garage
    Informations complémentaires
    1 place

Les équipements :

  • Accès handicapé

Autres :

  • Chauffage :
    Individuel, Radiateur, Gaz
  • Année de construction :
    1970
  • Exposition :
    Sud
Synthèse
Maison à Muret
523 750 €
Surface : 150 m²
Prix au m² : 3 492 €
Transaction :
Achat
Référence :
203144
Date de publication :
Aujourd'hui à 08:14
Maison - 150 m² - 5 pièces
Performance énergétique
A
B
C
D
E
F
G
Gaz à effet de serre
A
B
C
D
E
F
G
Agent
RESEAU EFFICITY
RESEAU EFFICITY
Mme Btissame Hamdane
Appeler
Écrire
Mettre en avant cette annonce
Signaler une erreur

Localisation :

Performance énergétique :

Logement économe
A
B
C
D
200
kWh/m²/an
9
kg CO₂/m²/an
E
F
G
Logement énergivore
Faible émission de CO₂
A
B
9
kg CO₂/m²/an
C
D
E
F
G
Forte émission de CO₂
Date du diagnostic : 09 janvier 2026
Annonces similaires
Annonces immobilières récentes