• Appartement - 60 m² - 4 pièces
  • Appartement - 60 m² - 4 pièces
  • Appartement - 60 m² - 4 pièces
  • Appartement - 60 m² - 4 pièces
226 900 €
60 m²
4 pièces
3 chambres

Description :

Mouxy – Exclusivité Aix'plore Immobilier!

Produit rare idéal pour un premier achat ou un investissement locatif

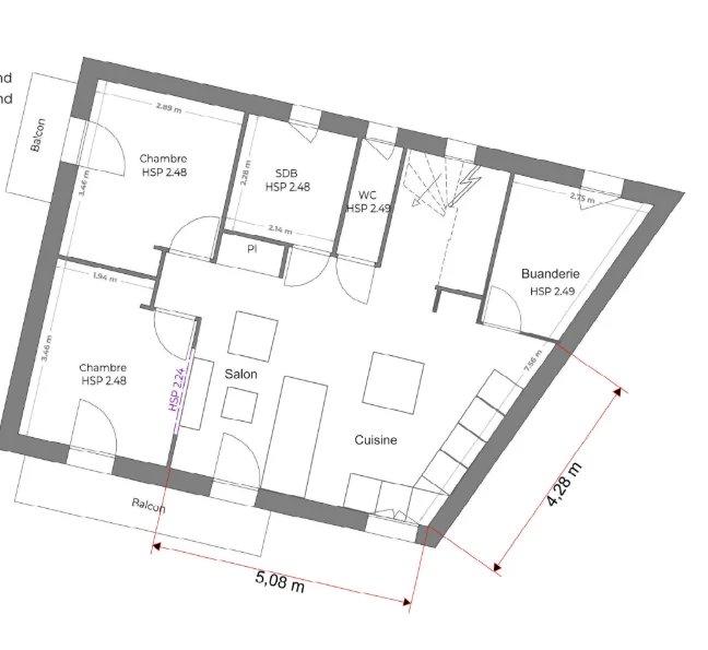
Découvrez cet appartement de type 3 situé au 2ème étage d'une petite copropriété de 3 lots.

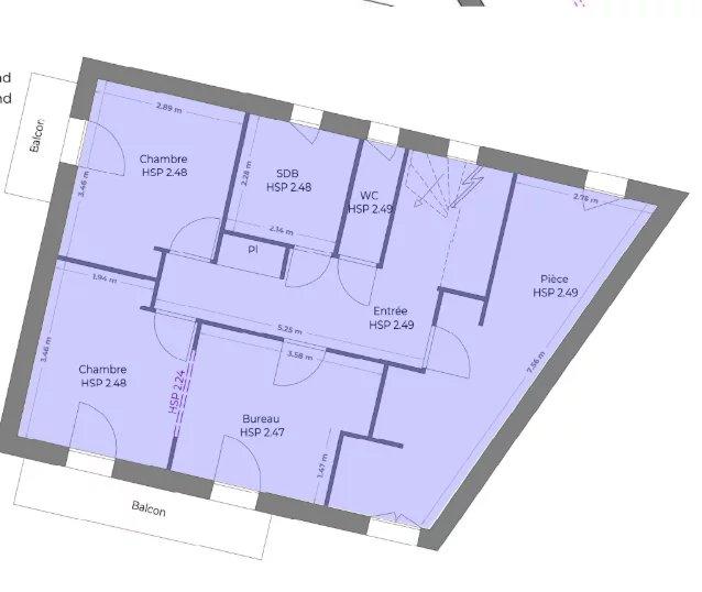
Celui-ci étant actuellement l'espace nuit, je pourrai aisément redéfinir les volumes (plan ci-joint)

D'une superficie de 60m² ce bien comprend pour le moment une entrée, 3 chambres, une salle de bains, un WC séparé et une pièce de 16m². Coût des travaux pour réaménagé en T3 d'environ 20 000€ cuisine inclus.

En annexes: Un garage avec porte sectionnelle électrique d'environ 16m², une place de parking extérieure et deux balcons exposé sud et Ouest.

Chauffage gaz avec répartiteur (chaudière de 2022), bâtiment datant de 2002, double vitrage PVC, fibre, VMC.

Un bien agréable ou vous pourrez laissé libre court à votre imagination!

Contactez nous sans tarder pour organiser une visite ! Honoraires à la charge du vendeur - Nombre de lots dans la copropriété: 3 - Montant moyen de la quote-part de charges courantes 360 €/an - Montant estimé des dépenses annuelles d'énergie pour un usage standard : 3450€ ~ 4730€ - Les informations sur les risques auxquels ce bien est exposé sont disponibles sur le site Géorisques : www.georisques.gouv.fr - Dimitri MOURIER - Agent commercial - EI - RSAC Chambéry 934207986

Afficher plus de détails

Informations sur ce bien :

L'intérieur :

  • 4 pièces
  • 60 m²
    Informations complémentaires
    Surface habitable : 61 m²
  • 3 Chambres
  • 1 Salle de bain

L'extérieur :

  • Balcon
  • Parking
  • Garage
    Informations complémentaires
    1 place

Les équipements :

  • Tout à l'égout
  • Fibre optique
  • Double vitrage

Autres :

  • Chauffage :
    Collectif, Radiateur, Gaz
  • État :
    Bon état
  • Exposition :
    Sud-ouest
  • Vue :
    Dégagée
  • Étage :
    2nd étage
    Informations complémentaires
    Nombre d'étages de la construction : 1

Copropriété :

  • Copropriété :
    Oui
  • Nombre de lots :
    3
  • Charges annuelles :
    30 €
  • Taxe foncière :
    850 €
Synthèse
Appartement à Mouxy
226 900 €
Surface : 60 m²
Prix au m² : 3 782 €
Transaction :
Achat
Référence :
86469920
Date de publication :
Il y a plus de 7 jours
Appartement - 60 m² - 4 pièces
Performance énergétique
A
B
C
D
E
F
G
Gaz à effet de serre
A
B
C
D
E
F
G
Agent
EXP GLOBAL FRANCE
EXP GLOBAL FRANCE
Dimitri MOURIER
Appeler
Écrire
Mettre en avant cette annonce
Signaler une erreur

Localisation :

L'adresse exacte n'est pas renseignée. Le bien se situe dans cette zone.

Performance énergétique :

Logement économe
A
B
C
146
kWh/m²/an
22
kg CO₂/m²/an
D
E
F
G
Logement énergivore
Faible émission de CO₂
A
B
C
22
kg CO₂/m²/an
D
E
F
G
Forte émission de CO₂
Date du diagnostic : 07 mai 2025
Annonces similaires
Annonces immobilières récentes