• Local d'activités - 3 486 m²
  • Local d'activités - 3 486 m²
  • Local d'activités - 3 486 m²
  • Local d'activités - 3 486 m²
  • Local d'activités - 3 486 m²
  • Local d'activités - 3 486 m²
  • Local d'activités - 3 486 m²
5 307 435 € HT
3 486 m²

Description :

Votre cabinet TH2 Conseil et Transaction vous présente à la vente:

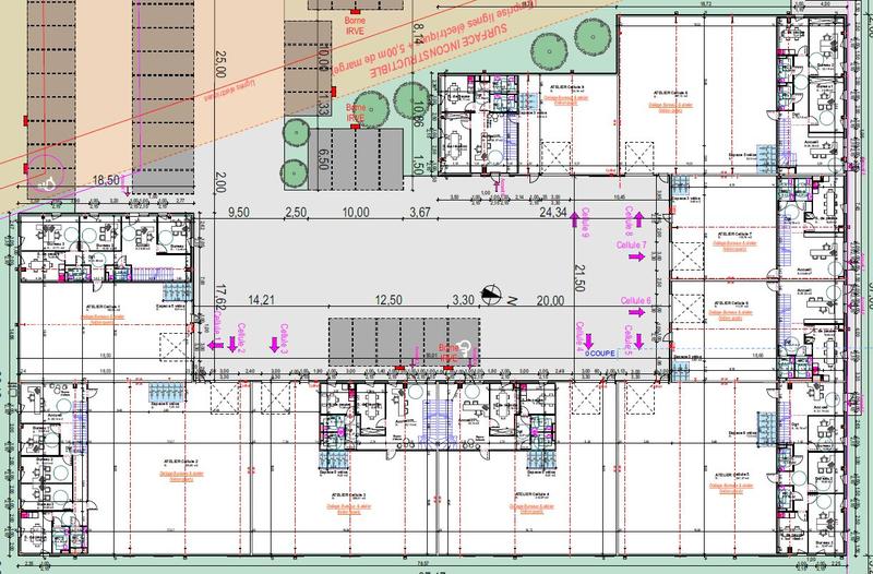
Dans le cadre d'un VEFA nous vous proposons des cellules d'activités d'une surface totale de 3486 m² sur un foncier de 12802 m², livré brut de béton, fluides et élec en attente (pouvant être aménagées).
Les surfaces des cellules commencent à partir de 240 m², le projet peut être vendu en totalité pour un utilisateur.
Places de parking > 30 places pour le personnel dont 2 PMR, 5 places visiteurs dont 1 PMR et 18 places pour les utilitaires.
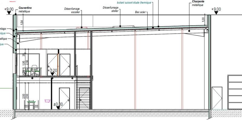
Matériaux de qualité, aux dernières normes énergétiques.
Zone d'activité très attractive, avec accès rapide au périphérique et l'A84.
Hauteur 6,50 mètres.
Panneaux solaires sur la toiture.
Prix aux M² : 1450 € HT

Idéal activités artisanales, stockage, industriel etc...

TH2 Conseil et Transaction 06.69.40.16.93
Nous ne manquerons pas de vous donner plus d'informations concernant ce bien exclusif.

Honoraires inclus de 5% HT à la charge de l'acquéreur. Prix hors honoraires 5 054 700 € HT. Non soumis au DPE. Les informations sur les risques auxquels ce bien est exposé sont disponibles sur le site Géorisques : georisques.gouv.fr.

Afficher plus de détails

Informations sur ce bien :

L'intérieur :

  • 3 486 m²
    Informations complémentaires
    Min. : 240 m²

L'extérieur :

  • Parking

Les équipements :

  • Accès handicapé

Autres :

  • Étage :
    RDC
Synthèse
Local d'activités à Mouen
5 307 435 € HT
Surface : 3 486 m²
Prix au m² : 1 523 €
Transaction :
Achat (professionnels)
Référence :
VP650-TH2
Mandat :
Exclusif
Date de publication :
Il y a plus de 7 jours
Local d'activités - 3 486 m²
Agent
TH2 CONSEIL ET TRANSACTION
TH2 CONSEIL ET TRANSACTION
TH2 CT
Appeler
Écrire
Mettre en avant cette annonce
Signaler une erreur

Localisation :

Performance énergétique :

Bien non soumis au Diagnostic de Performance Énergétique (DPE)

Annonces similaires
Annonces immobilières récentes