• Appartement - 58 m² - 3 pièces
  • Appartement - 58 m² - 3 pièces
  • Appartement - 58 m² - 3 pièces
  • Appartement - 58 m² - 3 pièces
  • Appartement - 58 m² - 3 pièces
  • Appartement - 58 m² - 3 pièces
496 000 €
58 m²
3 pièces
2 chambres

Description :

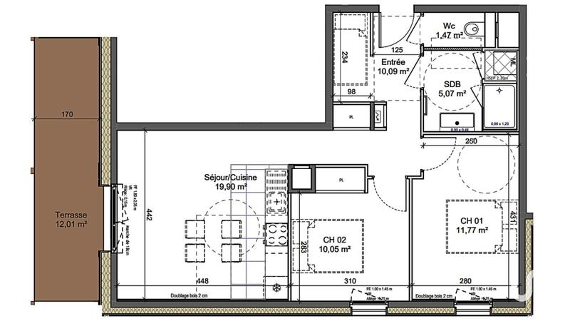
Appartement T3 de 58m² avec terrasse de 12m², au 1er Étage à Montriond

Découvrez ce bel appartement T3 situé au 1er étage (R+1) d'une résidence de standing, à Montriond,

D'une surface habitable de 58,35 m², il se compose d'une entrée spacieuse de 10,09 m² offrant de nombreux rangements, menant à une pièce de vie avec séjour et cuisine ouverte de 19,90 m², lumineuse et conviviale, avec accès direct à une terrasse de 12,01 m².

L'espace nuit comprend deux chambres confortables :

• Chambre 1 : 11,77 m²
• Chambre 2 : 10,05 m²

Une salle de bains de 5,07 m² ainsi qu'un WC indépendant complètent l'agencement fonctionnel de cet appartement.

Grâce à ses volumes équilibrés, ses ouvertures généreuses et son espace extérieur, ce bien est idéal pour une résidence principale, un pied-à-terre en montagne ou un investissement locatif dans une commune prisée du secteur.

Deux parkings et une cave complètent idéalement ce bien d'exception.

Afficher plus de détails

Informations sur ce bien :

L'intérieur :

  • 3 pièces
  • 58 m²
    Informations complémentaires
    Surface habitable : 58 m²
  • 2 Chambres
  • Cuisine
  • 1 Salle de bain
  • 1 Toilette
  • Séjour de 20 m²
  • Cave

L'extérieur :

  • Terrasse
  • 2 Parkings
    Informations complémentaires
    Extérieur

Les équipements :

  • Ascenseur
  • Fibre optique
  • Double vitrage
  • Interphone
  • Digicode

Autres :

  • Chauffage :
    Collectif, Granulé de bois
  • Année de construction :
    2025
  • Exposition :
    Sud-ouest
  • Étage :
    1er étage
    Informations complémentaires
    Nombre d'étages de la construction : 3

Copropriété :

  • Copropriété :
    Oui
  • Nombre de lots :
    31
  • Charges annuelles :
    1 560 €
Synthèse
Appartement à Montriond
496 000 €
Surface : 58 m²
Prix au m² : 8 552 €
Transaction :
Achat
Référence :
15-A102-KAIR
Disponibilité :
15/03/2026
Date de publication :
Aujourd'hui à 08:20
Appartement - 58 m² - 3 pièces
Performance énergétique
A
B
C
D
E
F
G
Gaz à effet de serre
A
B
C
D
E
F
G
Agent
HABEAS
HABEAS
Appeler
Écrire
Mettre en avant cette annonce
Signaler une erreur

Localisation :

L'adresse exacte n'est pas renseignée. Le bien se situe dans cette zone.

Performance énergétique :

Logement économe
A
B
90
kWh/m²/an
10
kg CO₂/m²/an
C
D
E
F
G
Logement énergivore
Faible émission de CO₂
A
B
10
kg CO₂/m²/an
C
D
E
F
G
Forte émission de CO₂
Date du diagnostic : 01 janvier 2025
Annonces similaires
Annonces immobilières récentes