• Appartement - 32 m² - 2 pièces
  • Appartement - 32 m² - 2 pièces
  • Appartement - 32 m² - 2 pièces
  • Appartement - 32 m² - 2 pièces
  • Appartement - 32 m² - 2 pièces
200 000 €
32 m²
2 pièces

Description :

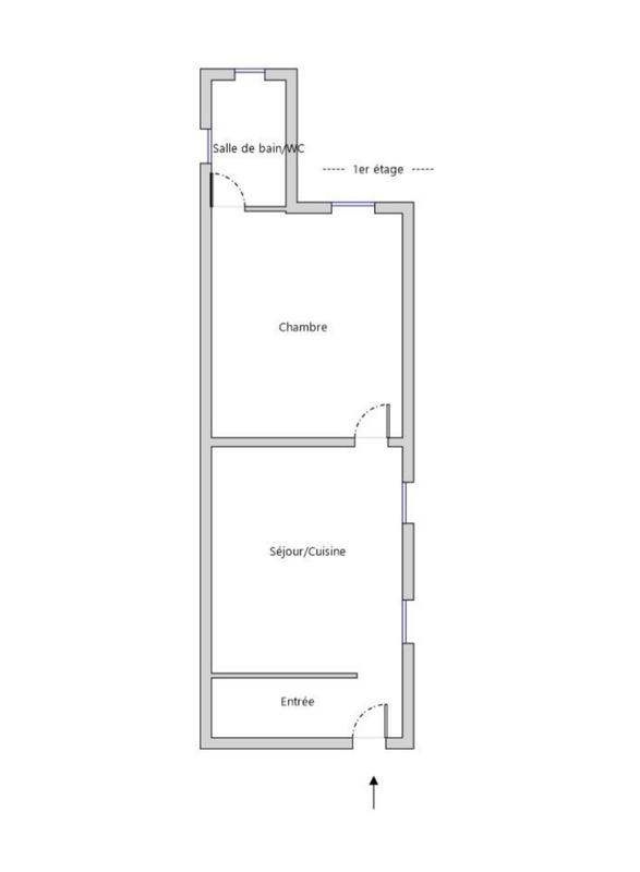
Iad France - Emmanuelle Fellah vous propose : Appartement 2 pièces à vendre - Bas Montreuil - Vendu loué 850 Euros par mois. À moins de cinq minutes à pied du métro Croix de Chavaux, cet appartement deux pièces est situé au premier et dernier étage d'une copropriété sécurisée. D'une superficie d'environ 32 m², ce logement comprend une entrée, un séjour lumineux avec cuisine ouverte, une chambre, une salle de bains avec WC. L'espace de vie bénéficie d'une belle luminosité naturelle. N'hésitez pas à me contacter pour plus d'informations ou pour organiser une visite. Des travaux d’isolation sont à prévoir. La presente annonce immobiliere vise 2 lots situés dans une copropriété de 25 lots au total et ne faisant l'objet d'aucune procédure en cours citée à l'article L. 721-1 du code de la construction et de l'habitation. Montant moyen mensuel de charges déclaré par le vendeur : 90€ par mois (soit 1080 € annuel). Honoraires d'agence à la charge du vendeur. Information d'affichage énergétique sur ce bien : classe ENERGIE G indice 626 et classe CLIMAT C indice 20. Les informations sur les risques auxquels ce bien est exposé, y compris l'obligation légale de débroussaillement, sont disponibles sur le site Géorisques : http://www.georisques.gouv.fr. La présente annonce immobilière a été rédigée sous la responsabilité éditoriale de Mme Emmanuelle Fellah mandataire indépendant en immobilier (sans détention de fonds), agent commercial de la SAS I@D France immatriculé au RSAC de Bobigny sous le numéro 948170337, titulaire de la carte de démarchage immobilier pour le compte de la société I@D France SAS.

Afficher plus de détails

Informations sur ce bien :

L'intérieur :

  • 2 pièces
  • 32 m²
    Informations complémentaires
    Surface habitable : 32 m²
  • Cave

Les équipements :

  • Digicode

Autres :

  • Chauffage :
    Individuel, Radiateur, Électrique
  • Année de construction :
    1900
  • Mitoyenneté :
    Non
  • Étage :
    1er étage
    Informations complémentaires
    Nombre d'étages de la construction : 1

Copropriété :

  • Copropriété :
    Oui
  • Nombre de lots :
    25
  • Charges annuelles :
    1 080 €
Synthèse
Appartement à Montreuil
200 000 €
Surface : 32 m²
Prix au m² : 6 250 €
Transaction :
Achat
Référence :
1950092
Date de publication :
Il y a plus de 7 jours
Appartement - 32 m² - 2 pièces
Performance énergétique
A
B
C
D
E
F
G
Gaz à effet de serre
A
B
C
D
E
F
G
Agent
iad france
iad france
Emmanuelle Fellah
Appeler
Écrire
Mettre en avant cette annonce
Signaler une erreur

Localisation :

L'adresse exacte n'est pas renseignée. Le bien se situe dans cette zone.

Performance énergétique :

Logement économe
A
B
C
D
E
F
G
626
kWh/m²/an
20
kg CO₂/m²/an
Logement énergivore
Faible émission de CO₂
A
B
C
20
kg CO₂/m²/an
D
E
F
G
Forte émission de CO₂
Date du diagnostic : 29 août 2024
Annonces similaires
Annonces immobilières récentes