Maison - 145 m² - 6 pièces à Montrem
Description :
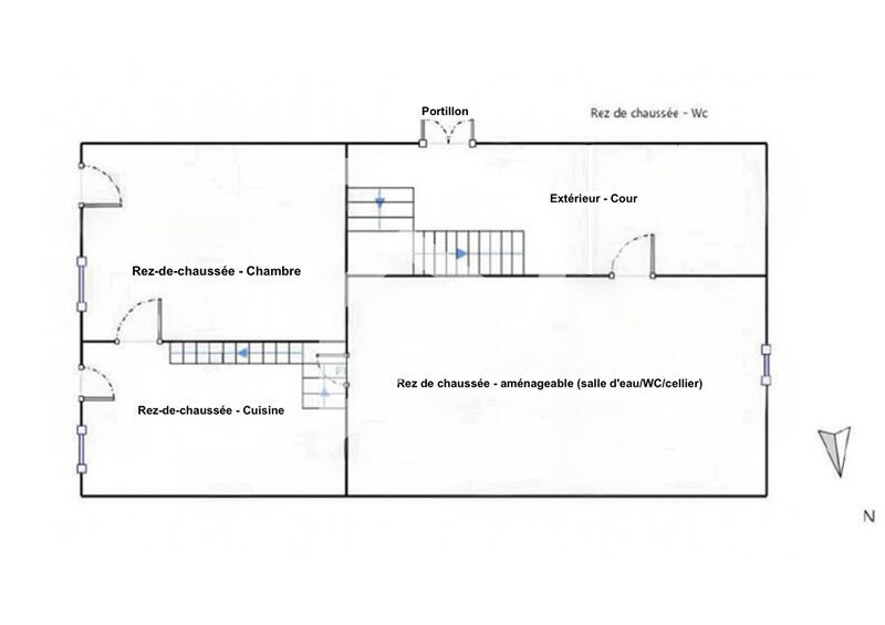
Stéphane Plaza immobilier Périgueux - Vous cherchez un bien à réhabiliter pour y résider ou créer 2 appartements à louer ? Nous vous proposons de découvrir ce bien situé dans le bourg de MONTREM (24110) dans la périphérie de PÉRIGUEUX. Entièrement vide, il constitue une base idéale pour un projet de rénovation complète : - création d'une maison familiale avec jusqu'à 4 chambres, - ou division en deux appartements, par exemple un T2 en rez-de-chaussée et un T3 à l'étage. Des travaux préparatoires ont déjà été réalisés comme les menuiseries PVC double vitrage ainsi que les volets roulants électriques installés en 2025 et la charpente (photo). Les extérieurs, bien que sans jardin, offrent 2 espaces aménageables : - une cour privative pour le rez-de-chaussée, - une terrasse suspendue pour l'appartement de l'étage. Un bien parfait pour investisseurs, marchands de biens ou particuliers souhaitant créer un projet sur mesure. Adrien vous accompagne au 06x83x47x78x80. L'agence Stéphane Plaza Immobilier à Périgueux est votre expert en achat, vente, location, et gestion locative. Spécialisée en immobilier à Périgueux, notre équipe vous accompagne pour tous vos projets immobiliers, que ce soit pour trouver votre futur bien ou gérer efficacement vos propriétés. (9.00 % honoraires TTC à la charge de l'acquéreur.) Adrien PAUL (EI) Agent Commercial - Numéro RSAC : 791162522 - PERIGUEUX.
Points positifs : EmplacementMenuiseries et volets roulants 2025
Informations sur ce bien :
L'intérieur :
-
6 pièces
-
145 m²Informations complémentairesSurface habitable : 145 m²
-
3 Chambres
-
Sans cuisineInformations complémentairesSans cuisine
Les équipements :
-
Tout à l'égout
-
Accès handicapé
-
Double vitrage
Autres :
-
Chauffage :Sans chauffage
-
Style :Maison de ville
-
Année de construction :1900
-
État :Extérieur : A rafraichir
-
Exposition :Sud-est
-
Étage :RDC
-
Nombre de niveaux :3
Copropriété :
-
Taxe foncière :400 €
Localisation :
Performance énergétique :
Bien non soumis au Diagnostic de Performance Énergétique (DPE)
Ventes de maisons à proximité
- 17 ventes de maisons à Razac-sur-l'Isle (3.4 km)
- 14 ventes de maisons à Coursac (3.9 km)
- 38 ventes de maisons à Saint-Astier (5 km)
- 7 ventes de maisons à Annesse-et-Beaulieu (5.1 km)
- 10 ventes de maisons à Léguillac-de-l'Auche (6.2 km)
- 3 ventes de maisons à Saint-Paul-de-Serre (6.2 km)
- 6 ventes de maisons à Grignols (6.9 km)
- 5 ventes de maisons à Saint-Léon-sur-l'Isle (7.4 km)
- 20 ventes de maisons à Marsac-sur-l'Isle (7.6 km)