Appartement - 34 m² - 1 pièce à Montpellier
favoris
115 000 €
Description :
Bruno de l'agence Orfèvre immobilier vous propose à la vente ce Studio d'env 34 m2, situé dans le quartier prisé d'Antigone, à seulement 350 mètres de l'arrêt de tram " place de l'Europe", situé au deuxième étage sur 7 d'une résidence sécurisée et SANS TRAVAUX A PRÉVOIR sur la copropriété. L'appartement dispose d'une entrée, dune pièce de vie avec espace cuisine ,d'une salle de bains, un Wc indépendant. Ascenseur dans la résidence. Actuellement loué 530 euros CC. Libre en avril 2027. Idéal investisseurs , premier achat, ou pour les études de ses enfants... Informations visites Contactez moi O6 98 52 45 77 Copropriété de 240 lots - dont 124 lots habitation. (Pas de procédure en cours). Charges annuelles : 996 euros.
Afficher plus de détails
Informations sur ce bien :
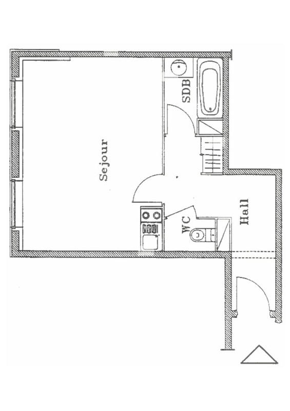
L'intérieur :
-
1 pièce
-
34 m²Informations complémentairesSurface Carrez : 34 m²
Surface habitable : 34 m² -
Cuisine kitchenetteInformations complémentairesKitchenette, 2nd étage
-
1 Salle de bain de 3 m²Informations complémentaires2nd étage
-
1 Toilette de 1 m²Informations complémentaires2nd étage
-
Salon / Séjour de 20 m²Informations complémentaires2nd étage, exposition nord-ouest
Les équipements :
-
Ascenseur
-
Portail électrique
-
Interphone
-
Digicode
Autres :
-
Chauffage :Collectif, Gaz
-
État :Intérieur : A rafraîchir
-
Étage :2nd étageInformations complémentairesNombre d'étages de la construction : 7
-
Nombre de niveaux :1
Copropriété :
-
Copropriété :Oui
-
Nombre de lots :240
-
Charges annuelles :996 €
-
Procédure :Pas de procédure en cours
-
Taxe foncière :946 €
Synthèse
Appartement à Montpellier
115 000 €
Surface :
34 m²
Prix au m² :
3 382 €
Transaction :
Achat
Référence :
4623
Date de publication :
Il y a plus de 7 jours
Contacter l'annonceur
Performance énergétique
A
B
C
D
E
F
G
Gaz à effet de serre
A
B
C
D
E
F
G
Agent
Orfèvre Immobilier
Bruno POITRENAUD
Mettre en avant cette annonce
Signaler une erreur
Localisation :
L'adresse exacte n'est pas renseignée. Le bien se situe dans cette zone.
Performance énergétique :
Logement économe
A
B
C
126
kWh/m²/an
8
kg CO₂/m²/an
D
E
F
G
Logement énergivore
Faible émission de CO₂
A
B
8
kg CO₂/m²/an
C
D
E
F
G
Forte émission de CO₂
Date du diagnostic :
23 novembre 2022
Estimation des coûts annuels d’énergie du logement :
324 €
à 438 €
Ventes d'appartements à proximité
- 128 ventes d'appartements à Castelnau-le-Lez (3 km)
- 67 ventes d'appartements à Lattes (5.1 km)
- 75 ventes d'appartements à Juvignac (5.2 km)
- 13 ventes d'appartements à Clapiers (5.2 km)
- 46 ventes d'appartements à Saint-Jean-de-Védas (5.7 km)
- 14 ventes d'appartements au Crès (6.1 km)
- 5 ventes d'appartements à Jacou (6.2 km)
- 5 ventes d'appartements à Lavérune (6.5 km)
- 1 vente d'appartement à Montferrier-sur-Lez (6.9 km)