• Appartement - 19 m² - 1 pièce
  • Appartement - 19 m² - 1 pièce
  • Appartement - 19 m² - 1 pièce
  • Appartement - 19 m² - 1 pièce
60 000 €
19 m²
1 pièce
1 chambre

Description :

34000 - OPPORTUNITE INVESTISSEMENT MONTPELLIER CENTRE - Studio Etudiant meublé, rentabilité garantie sans gestion.
EffiCity, l'agence qui estime votre bien en ligne, vous présente une opportunité idéale pour investisseurs: un ravissant studio meublé et équipé de 19,05 m2 LOI CARREZ situé dans le quartier de la nouvelle mairie de Montpellier, à quelques pas des commerces et du bassin Jacques Coeur.

Ce studio lumineux et paisible s'établit au premier étage de la résidence étudiante Advenis, une construction récente et bien entretenue. Profitez d'un emplacement stratégique, à quelques pas des commerces et des transports en commun.
Le studio est actuellement loué en bail commercial de location d'habitation meublée (régime de défiscalisation LMNP) pour une durée initiale de 9 ans et 9 mois, avec un contrat restant à courir de 4 ans et demi encore. Cela vous garantit des revenus mensuels fixes de 365 €.

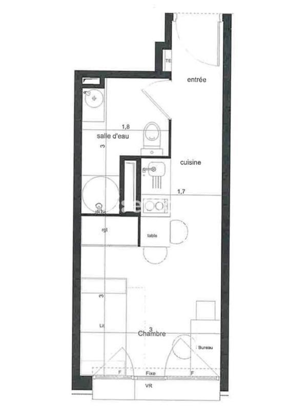
Il se compose d'une entrée, d'une chambre avec une kitchenette équipée, d'une salle d'eau avec WC et un placard. Le studio est prêt à accueillir des étudiants avec ses équipements complets, comprenant une plaque de cuisson, un réfrigérateur avec compartiment congélateur, un micro-ondes, une literie, un bureau et un fauteuil.
La résidence offre également des prestations de qualité, telles que : internet fibre haut débit, une laverie connectée, une salle de sport, un local à vélo, un parking voiture et une cafétéria conviviale pour les étudiants.

Charges annuelles : 884 €.
Taxe foncière : 313 €

Contactez Angélique VILLEDIEU, de chez EffiCity, l'Agence qui estime votre bien en ligne, pour plus d'informations au 06.12.44.66.00 ou par mail avilledieu@efficity.com
Les informations sur les risques auxquels ce bien est exposé sont disponibles sur le site Georisque : georisques. gouv. fr
Angélique Villedieu - EI - est Agent Commercial mandataire en immobilier, immatriculé au Registre Spécial des Agents Commerciaux du Tribunal de Commerce de Montpellier sous le n°893426155.
Siège social du mandant : effiCity, 48 avenue de Villiers - 75017 PARIS - Société par Actions Simplifiée, société au capital de 132 373,05 euros, immatriculée au RCS Paris 497 617 746 et titulaire de la Carte professionnelle CPI 7501 2015 000 002 025 - CCI Paris IDF - Caisse de Garantie : GALIAN Assurances 89 rue de la Boétie 75008 Paris

Afficher plus de détails

Informations sur ce bien :

L'intérieur :

  • 1 pièce
  • 19 m²
    Informations complémentaires
    Surface habitable : 19 m²
  • 1 Chambre
  • 1 Salle d'eau
  • 1 Toilette

Les équipements :

  • Ascenseur
  • Accès handicapé

Autres :

  • Exposition :
    Nord
  • Étage :
    1er étage

Copropriété :

  • Copropriété :
    Oui
  • Nombre de lots :
    50
  • Charges annuelles :
    884 €
  • Taxe foncière :
    313 €
Synthèse
Appartement à Montpellier
60 000 €
Surface : 19 m²
Prix au m² : 3 158 €
Transaction :
Achat
Référence :
156048
Date de publication :
Il y a plus de 7 jours
Appartement - 19 m² - 1 pièce
Performance énergétique
A
B
C
D
E
F
G
Gaz à effet de serre
A
B
C
D
E
F
G
Agent
RESEAU EFFICITY
RESEAU EFFICITY
Mme Angélique Villedieu
Appeler
Écrire
Mettre en avant cette annonce
Signaler une erreur

Localisation :

Performance énergétique :

Logement économe
A
B
C
167
kWh/m²/an
19
kg CO₂/m²/an
D
E
F
G
Logement énergivore
Faible émission de CO₂
A
B
C
19
kg CO₂/m²/an
D
E
F
G
Forte émission de CO₂
Date du diagnostic : 04 avril 2024
Annonces similaires
Annonces immobilières récentes