Maison - 94 m² - 4 pièces à Montceaux

favoris
  • Maison - 94 m² - 4 pièces
  • Maison - 94 m² - 4 pièces
  • Maison - 94 m² - 4 pièces
  • Maison - 94 m² - 4 pièces
249 000 €
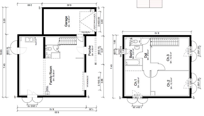
94 m²
4 pièces
3 chambres

Description :

10 m² OFFERT + CUISINE OFFERTE + PACK DECO OFFERT (peinture + parquet des chambres + faïence sdb + placard pour nos 50 ans.Exclusivité: Construction sur Rillieux la pape Nous sommes ravis de vous présenter notre projet de construction d'une magnifique maison neuve, située sur un terrain spacieux de 343 m² sur la commune de Rillieux la pape.Caractéristiques du bien :Superficie totale : 93 m²3 chambres confortables (possibilité 4) avec placards, plancher chauffant pour un confort optimal tout au long de l'annéeVolets roulants motorisés et centralisé pour une sécurité accrue et une gestion aisée de la luminosité un salon cuisine de plus de 40 m² et un garage de 18m². Les plans sont entièrement modifiable et personnalisable en fonction de vos souhaits et de votre budget.Cette maison est conçue pour offrir à ses occupants un cadre de vie exceptionnel, alliant confort, modernité et fonctionnalité.Située dans un quartier paisible, cette maison bénéficie d'un environnement calme et verdoyant, tout en étant proche des commodités et des infrastructures essentielles (1 minutes à pied des écoles maternelles, primaires, collège et lycée.Contactez-nous dès aujourd'hui pour en savoir plus sur ce projet de construction exceptionnel.

Afficher plus de détails

Informations sur ce bien :

L'intérieur :

  • 4 pièces
  • 94 m²
  • 3 Chambres
  • 1 Salle de bain

L'extérieur :

  • Garage

À proximité :

  • Accès voie rapide
  • Centre-ville
  • Commerces
  • Ecoles
  • Transports en commun

Autres :

  • Style :
    Traditionnelle
Synthèse
Maison à Montceaux
249 000 €
Surface : 94 m²
Prix au m² : 2 649 €
Transaction :
Neuf
Référence :
5605 DUFOR Arnaud
Date de publication :
Aujourd'hui à 10:46
Maison - 94 m² - 4 pièces
Agent
Maisons Punch - Saint Priest
Maisons Punch - Saint Priest
Arnaud DUFOR
Appeler
Écrire
Mettre en avant cette annonce
Signaler une erreur

Localisation :

L'adresse exacte n'est pas renseignée. Le bien se situe dans cette zone.
Annonces similaires
Annonces immobilières récentes