Maison - 79 m² - 4 pièces à Montceaux

favoris
  • Maison - 79 m² - 4 pièces
  • Maison - 79 m² - 4 pièces
  • Maison - 79 m² - 4 pièces
  • Maison - 79 m² - 4 pièces
  • Maison - 79 m² - 4 pièces
228 700 €
79 m²
4 pièces
3 chambres

Description :

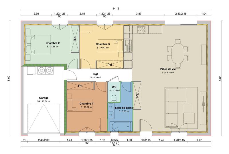
OFFRE EXCEPTIONNELLE POUR LES 50ANS : 10m² OFFERT + 2 PACK AU CHOIXProduit rare à saisir au plus vite.Situé sur la jolie commune de Montceaux dans un cadre calme et arboré.Sur une parcelle de 400m² entièrement viabilisée, Maisons punch vous propose une construction neuve de plain-pied de 80m².Cette maison est composée d’une partie jour avec une très belle pièce de vie de 38m² avec cuisine ouverte sur le séjour.La partie nuit est répartie en 3 chambres dont 2 de 10,50m² et une de 11,50m² ainsi qu’une salle de bain avec baignoire ou douche au choix, un lavabo et un WC séparé.Pour finir, la maison possède un garage de 15m².Plan entièrement personnalisables au bon vouloir des futurs acquéreurs.Nombreuses prestations possibles.CONSTRUCTION, TERRAIN ET VRD INCLUS DANS LE PRIX.Prestations de qualités : volets roulants intégrés électrique et connectés, Pompe à chaleurMaison conforme à la RE 2020

Afficher plus de détails

Informations sur ce bien :

L'intérieur :

  • 4 pièces
  • 79 m²
  • 3 Chambres
  • 1 Salle de bain

L'extérieur :

  • Garage

À proximité :

  • Accès voie rapide
  • Centre-ville
  • Commerces
  • Ecoles

Autres :

  • Style :
    Traditionnelle
Synthèse
Maison à Montceaux
228 700 €
Surface : 79 m²
Prix au m² : 2 895 €
Transaction :
Neuf
Référence :
15890 MARTINET Sylvain
Date de publication :
Aujourd'hui à 10:46
Maison - 79 m² - 4 pièces
Agent
Maisons Punch - Saint Priest
Maisons Punch - Saint Priest
Appeler
Écrire
Mettre en avant cette annonce
Signaler une erreur

Localisation :

L'adresse exacte n'est pas renseignée. Le bien se situe dans cette zone.
Annonces similaires
Annonces immobilières récentes