Maison - 125 m² - 5 pièces à Montanay

favoris
  • Maison - 125 m² - 5 pièces
  • Maison - 125 m² - 5 pièces
  • Maison - 125 m² - 5 pièces
  • Maison - 125 m² - 5 pièces
487 000 €
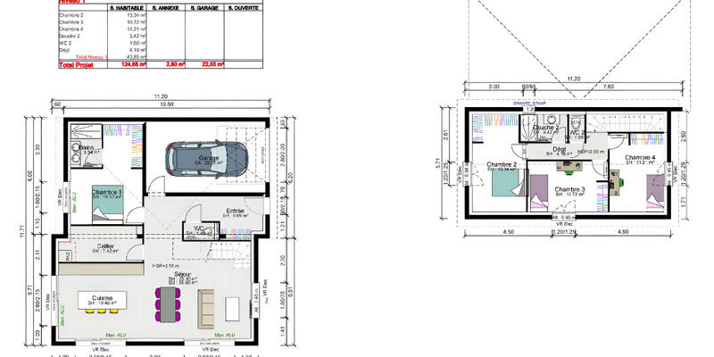
125 m²
5 pièces
4 chambres

Description :

En accord avec notre partenaire foncier, et sous réserve de disponibilité, nous vous proposons le projet de construction d'une maison individuelle suivant :

À 2 minutes du cœur de la commune de Montanay et 5 min de la commune de Neuville sur Saône, vous trouverez au calme absolu un terrain d'une surface de 792m2, accueillant un projet de maison d'une superficie habitable de 125 m2 exposée Sud/ouest sans vis-à-vis. Ce projet est bien entendu évolutif selon votre cahier des charges et vos souhaits, à étudier ensemble avec notre bureau d'étude pour la réussite de votre projet.

Commodités :
Arrêt de bus : ligne 97
Commerces : à 5 minutes en voiture, 15 minutes en bus
Écoles : à 10 minutes en voiture, 10 minutes en bus
Collèges et lycées : à 10 min environ

Gare ferroviaire à Albigny & Autoroute à Massieu: à 10 min en voiture

Ce projet vous intéresse ? N'hésitez pas à nous contacter pour toute question complémentaire ainsi que pour toute prise de rendez - vous, afin de planifier une visite sur le terrain.

Prix du projet de construction : 247 000 €
Prix du terrain : 240 000 € non viabilisé

Ne sont pas inclus dans le prix : les Frais de notaire attachés au terrain, les VRD, la viabilité du terrain, les taxes diverses ainsi que les peintures et les revêtements de sols dans les chambres.

Afficher plus de détails

Informations sur ce bien :

L'intérieur :

  • 5 pièces
  • 125 m²
    Informations complémentaires
    Surface habitable : 125 m²
  • 4 Chambres
  • Séjour de 34 m²

Autres :

  • Nombre de niveaux :
    2
Synthèse
Maison à Montanay
487 000 €
Surface : 125 m²
Prix au m² : 3 896 €
Transaction :
Neuf
Référence :
FRANCK-Montanay
Date de publication :
Il y a plus de 7 jours
Maison - 125 m² - 5 pièces
Agent
HOME CAPITAL INVEST
HOME CAPITAL INVEST
Franck WILB
Appeler
Écrire
Mettre en avant cette annonce
Signaler une erreur

Localisation :

L'adresse exacte n'est pas renseignée. Le bien se situe dans cette zone.
Annonces similaires
Annonces immobilières récentes