• Local commercial - 73 m²
  • Local commercial - 73 m²
  • Local commercial - 73 m²
  • Local commercial - 73 m²
  • Local commercial - 73 m²
  • Local commercial - 73 m²
  • Local commercial - 73 m²
  • Local commercial - 73 m²
78 500 €
73 m²

Description :

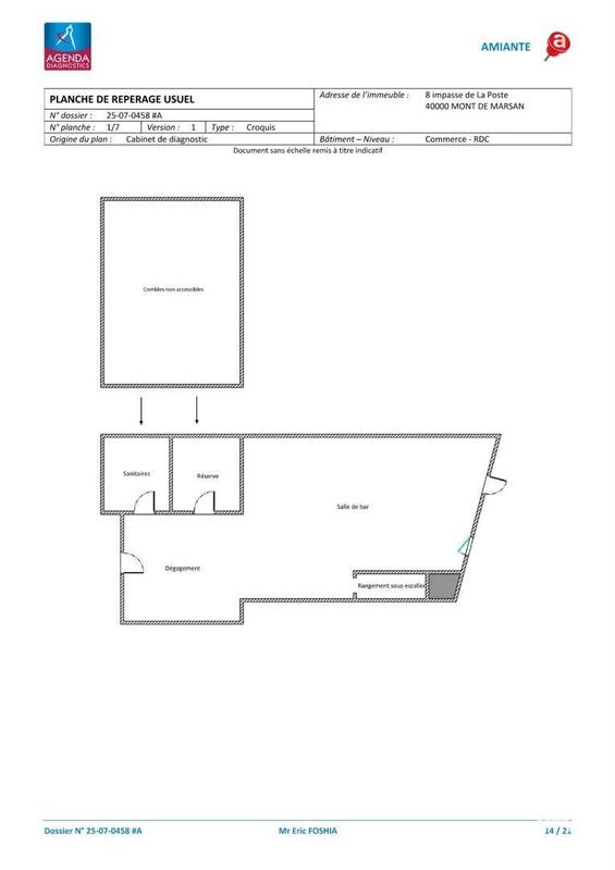
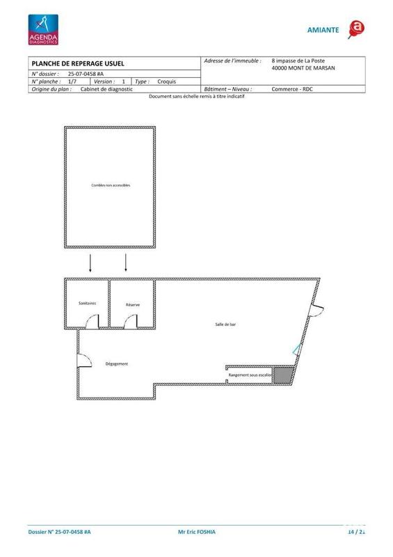
Iad France - Christel Lajous (06 62 34 96 14) vous propose : À vendre – Murs commerciaux d'un Bar – Hyper centre Mont-de-Marsan Situé en hyper centre de Mont-de-Marsan, à proximité immédiate de la Place de la Mairie, ce bar de 73 m² environ bénéficie d’un emplacement recherché. Le bien se compose de : . 1 grande salle de 63 m² environ, fonctionnelle, équipée d’un beau bar en bois, de son mobilier et d’une climatisation réversible. Sanitaires. 1 réserve. Assainissement conforme Possibilité de location, offrant une alternative intéressante à l’achat selon votre projet. Un établissement clé en main, idéal pour lancer ou développer une activité de bar en cOEur de ville. À visiter sans tarder ! Information d'affichage énergétique sur le bien associé à cette annonce : DPE NS indice 0 et GES NS indice 0. La présente annonce immobilière a été rédigée sous la responsabilité éditoriale de Mlle Christel Lajous (ID 81311), Agent Commercial mandataire en immobilier immatriculé au Registre Spécial des Agents Commerciaux (RSAC) du Tribunal de Commerce de MONT-DE-MARSAN sous le numéro 984780775 Retrouvez tous nos biens sur notre site internet. www.iadfrance.fr.

Afficher plus de détails

Informations sur ce bien :

L'intérieur :

  • 73 m²
    Informations complémentaires
    Surface habitable : 73 m²

Autres :

  • Mitoyenneté :
    Non
Synthèse
Local commercial à Mont-de-Marsan
78 500 €
Surface : 73 m²
Prix au m² : 1 075 €
Transaction :
Achat (professionnels)
Référence :
1974675
Date de publication :
Il y a plus de 7 jours
Local commercial - 73 m²
Agent
iad france
iad france
Christel Lajous
Appeler
Écrire
Mettre en avant cette annonce
Signaler une erreur

Localisation :

L'adresse exacte n'est pas renseignée. Le bien se situe dans cette zone.
Annonces similaires
Annonces immobilières récentes