• Local commercial - 1 600 m² - 10 pièces
  • Local commercial - 1 600 m² - 10 pièces
  • Local commercial - 1 600 m² - 10 pièces
  • Local commercial - 1 600 m² - 10 pièces
  • Local commercial - 1 600 m² - 10 pièces
  • Local commercial - 1 600 m² - 10 pièces
  • Local commercial - 1 600 m² - 10 pièces
  • Local commercial - 1 600 m² - 10 pièces
2 300 €
1 600 m²
10 pièces

Description :

LOCAUX COMMERCIAUX - MAISON MÉDICALE - 1600 m2 A VENDRE A MILHAUD (GARD)

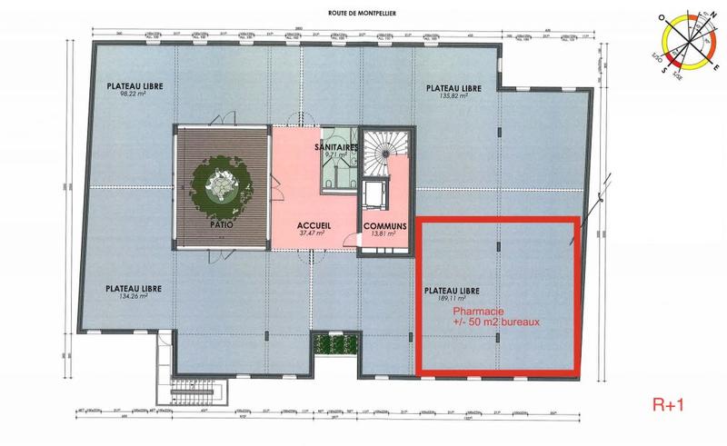
Locaux commerciaux modulables d'environ 1 600 m2 sur R+2 divisibles, plateaux de 50 à 200 m² encore disponibles.

Activités recherchées : Professions médicales UNIQUEMENT

Ils ont déjà réservé leur locaux :
-Médecins généralistes et spécialistes,
-Infirmier,
-Kinésithérapeute,
-Dentiste,
-Orthophoniste,
-Podologue,
-Sage-femme,
-Cardiologue,
-Pharmacie,
-Laboratoire d'analyses.

Pourquoi choisir la Maison Médicale de Milhaud ?
-Un emplacement stratégique : Entre NÎMES et LUNEL, avec un accès rapide via l'autoroute A9.

Un environnement agréable :
-Terrasses végétalisées,
-Espaces de détente,
-Services inclus et mutualisés :
-Entretien des locaux,
-Ascenseurs,
-Salles d'attentes communes,
-Parkings privés : 44 places réservées.

DPE : Non soumis

Prix de vente : 2 300 € HT/le m2 HE/HA, réservation en attente, climatisation en attente.
Honoraires agence : 6% HT du prix net vendeur charge Acquéreur

Taxe foncière : 15€ du m2

EV Immobilier
Philippe GIRAUD
+33(0)6 59 37 19 34
RSAC 412 566 887 Montpellier
giraud@ev-immo.fr
www.reseauev-immobilier.fr

Afficher plus de détails

Informations sur ce bien :

L'intérieur :

  • 10 pièces
  • 1 600 m²
    Informations complémentaires
    Surface commerciale : 1 600 m²
Synthèse
Local commercial à Milhaud
2 300 €
Surface : 1 600 m²
Prix au m² : 1 €
Transaction :
Achat (professionnels)
Référence :
GIR34EV6447
Date de publication :
Il y a plus de 7 jours
Local commercial - 1 600 m² - 10 pièces
Agent
Réseau EV Immobilier
Réseau EV Immobilier
GIRAUD
Appeler
Écrire
Mettre en avant cette annonce
Signaler une erreur

Localisation :

L'adresse exacte n'est pas renseignée. Le bien se situe dans cette zone.
Annonces similaires
Annonces immobilières récentes