Fonds de commerce - Local commercial - 113 m² à Marseille 9

favoris
  • Fonds de commerce - Local commercial - 113 m²
  • Fonds de commerce - Local commercial - 113 m²
  • Fonds de commerce - Local commercial - 113 m²
  • Fonds de commerce - Local commercial - 113 m²
  • Fonds de commerce - Local commercial - 113 m²
  • Fonds de commerce - Local commercial - 113 m²
20 000 € HT
113 m²
4 pièces

Description :

' MAZARGUES BEBEW '

VENTE DROIT AU BAIL avec Faible Loyer

Une Maison de Ville EN R+1 en Guise de Local Commercial en plein Village de Mazargues
9E Marseille avec double entrées.

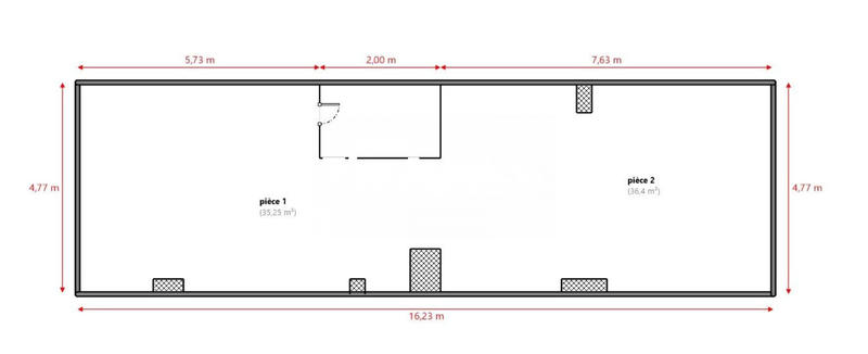
Un local de 113m² exploitable, Un rez de chaussée de 71.65m² traversant totalement refait à neuf avec huisseries sécurité et rideaux métallique.

A l'étage; trois pièces dont deux avec point d'eau et sanitaire réunissant 38.23m² + balcon.

Toutes activités acceptées sur dossier, si activité alimentaire prévoir les travaux d'extractions dans les règles de l'art à la charge exclusive du preneur.

Loyer très raisonnable : 980.00€ C.C / mois.
PAS DE COPRO ET PAS DE CHARGES

Disponibilité à partir d'AVRIL 2026

' The Agency , l'application du réseau immobilier '

Votre conseiller The Agency : Vaïana POLI
Agent commercial (Entreprise individuelle).
' THE AGENCY IMMO, la méthode pour une transaction réussie'

Afficher plus de détails

Informations sur ce bien :

L'intérieur :

  • 4 pièces
  • 113 m²

L'extérieur :

  • Parking

Les équipements :

  • Accès handicapé

Autres :

  • Chauffage :
    Individuel, Climatisation
  • Étage :
    1er étage
    Informations complémentaires
    Nombre d'étages de la construction : 1
Synthèse
Local commercial à Marseille 9
20 000 € HT
Surface : 113 m²
Prix au m² : 177 €
Transaction :
Fonds de commerce
Référence :
VB051-THEAGENCY
Mandat :
Exclusif
Date de publication :
Il y a plus de 7 jours
Fonds de commerce - Local commercial - 113 m²
Agent
The Agency
Appeler
Écrire
Mettre en avant cette annonce
Signaler une erreur

Localisation :

L'adresse exacte n'est pas renseignée. Le bien se situe dans cette zone.
Annonces immobilières récentes