• Loft - 280 m² - 7 pièces
  • Loft - 280 m² - 7 pièces
  • Loft - 280 m² - 7 pièces
  • Loft - 280 m² - 7 pièces
400 000 €
280 m²
7 pièces
3 chambres

Description :

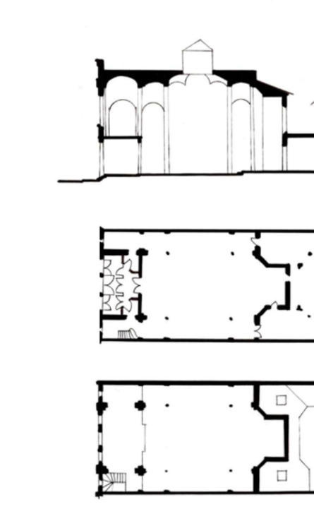
TEMPLE 1890 A LA VENTE
Attention bien lire l'annonce: en périle
Aucune condition suspensives ne sera accepté.
Ancien Temple Suisse à la vente de 1890. Les diags n'ont pas encore été effectué ( pas de dpe car chauffage inactif)
Très belle hauteur sous plafond.
Toiture refaite.
un amoureux de la pierre et de l'histoire.
Accès aux wc ainsi qu'une cuisine.
Je n'ai pas encore la désignation précise du bien. Très belle hauteur sous plafond. Monument historique.
Les informations sur les risques auxquels ce bien est exposé sont disponibles sur le site Georisque : georisques. gouv. fr
Thibault Corniquet - EI - est Agent Commercial mandataire en immobilier, immatriculé au Registre Spécial des Agents Commerciaux du Tribunal de Commerce de Marseille sous le n°811251776.
Siège social du mandant : effiCity, 48 avenue de Villiers - 75017 PARIS - Société par Actions Simplifiée, société au capital de 132 373,05 euros, immatriculée au RCS Paris 497 617 746 et titulaire de la Carte professionnelle CPI 7501 2015 000 002 025 - CCI Paris IDF - Caisse de Garantie : GALIAN Assurances 89 rue de la Boétie 75008 Paris

Afficher plus de détails

Informations sur ce bien :

L'intérieur :

  • 7 pièces
  • 280 m²
    Informations complémentaires
    Surface habitable : 280 m²
  • 3 Chambres
  • 1 Salle de bain
  • 1 Salle d'eau
  • 1 Toilette

Les équipements :

  • Accès handicapé
Synthèse
Loft à Marseille 6
400 000 €
Surface : 280 m²
Prix au m² : 1 429 €
Transaction :
Achat
Référence :
199980
Date de publication :
Il y a plus de 7 jours
Loft - 280 m² - 7 pièces
Performance énergétique
A
B
C
D
E
F
G
Gaz à effet de serre
A
B
C
D
E
F
G
Agent
RESEAU EFFICITY
RESEAU EFFICITY
M. Thibault Corniquet
Appeler
Écrire
Mettre en avant cette annonce
Signaler une erreur

Localisation :

Performance énergétique :

Logement économe
A
B
C
D
E
260
kWh/m²/an
20
kg CO₂/m²/an
F
G
Logement énergivore
Faible émission de CO₂
A
B
C
20
kg CO₂/m²/an
D
E
F
G
Forte émission de CO₂
Date du diagnostic : 21 novembre 2025
Annonces similaires
Annonces immobilières récentes