• Appartement - 26 à 106 m² - 4 pièces
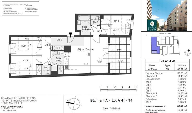
88 m²
4 pièces
3 chambres

Description :

C'est au cœur du centre-ville de Marseille, au sein du quartier La Timone dans le 5ème arrondissement que votre résidence Patio Serena voit le jour. Idéalement située, elle bénéficie de tous les agréments d'un quartier reconnu pour son calme et sa quiétude. En quelques minutes de
marche seulement vous accéderez à de nombreux commerces de proximité, au groupement
scolaire et universitaire La Timone ou encore à la plage du Prado.
L'accès à la voie L2 est également très rapide (moins de 5min), un véritable plus pour faciliter tous vos déplacements.

Articulée autour d'un vaste parc central entièrement végétalisé, la résidence Patio Serena a été conçue comme un espace de respiration en cœur de ville.
Des lignes épurées rappelant un mouvement de vague et d'élégants jeux d'ombres et de lumières sur les façades viennent dessiner les contours d'une signature architecturale unique.

Afficher plus de détails

Informations sur ce bien :

L'intérieur :

  • 4 pièces
  • 26 à 106 m²
  • 3 Chambres
  • Cuisine américaine
    Informations complémentaires
    Américaine
  • 1 Salle de bain
  • 1 Salle d'eau
  • 2 Toilettes

L'extérieur :

  • Jardin
  • Terrasse

Les équipements :

  • Ascenseur
  • Accès handicapé
  • Double vitrage
  • Interphone

Autres :

  • Chauffage :
    Individuel, Électrique
  • État :
    Neuf
  • Exposition :
    Sud
  • Étage :
    4ème étage
Synthèse
Appartement à Marseille 5
Surface : 88 m²
Transaction :
Neuf
Référence :
T4_NEUF_-_A41
Nom du programme :
LE PATIO SERENA
Date de livraison :
30/06/2025
Date de publication :
Il y a plus de 7 jours
Appartement - 26 à 106 m² - 4 pièces
Agent
FDI MEDITERRANEE
FDI MEDITERRANEE
GRAND SUD DEVELOPPEMENT
Appeler
Écrire
Mettre en avant cette annonce
Signaler une erreur

Localisation :

L'adresse exacte n'est pas renseignée. Le bien se situe dans cette zone.
Annonces immobilières récentes