• Appartement - 57 m² - 3 pièces
  • Appartement - 57 m² - 3 pièces
  • Appartement - 57 m² - 3 pièces
  • Appartement - 57 m² - 3 pièces
  • Appartement - 57 m² - 3 pièces
  • Appartement - 57 m² - 3 pièces
  • Appartement - 57 m² - 3 pièces
206 250 €
57 m²
3 pièces
2 chambres

Description :

Au sein du quartier des Chartreux, dans une résidence sécurisée et contemporaine à proximité des commerces, transports et axes autoroutiers, se situe cet appartement T3.

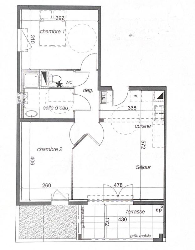
Cet appartement T3 de 57m² au rez-de-chaussée comprend:

- un séjour avec cuisine aménagée et équipée de plus de 23m² exposé Sud-Ouest et donnant sur une terrasse de plus de 7 m²,
- deux chambres non mitoyennes l'une de l'autre,
- une salle d'eau,
- un WC.

Cet appartement est localisé dans une résidence tranquille et sécurisée. La résidence est toujours sous garantie dommages ouvrages pour plusieurs années.

Les charges sont faibles et comprennent l'eau chaude et l'eau froide.

Cet appartement est idéal pour une résidence principale de plain pied à proximité du centre-ville.
Les normes PMR sont respectées dans cette résidence, permettant aux personnes à mobilité réduites de s'y installer. Nombre de lots de la copropriété : 238, Montant moyen annuel de la quote-part de charges (budget prévisionnel)(eau froide et chaude comprises) : 1092€ soit 91€ par mois. Les honoraires sont à la charge du vendeur.
Les informations sur les risques auxquels ce bien est exposé sont disponibles sur le site Géorisques : www. georisques. gouv. fr.

Réseau Immobilier CAPIFRANCE - Votre agent commercial (RSAC N°537 662 033 - Greffe de MARSEILLE) Marie TRIFAULT Entrepreneur Individuel 06 46 64 24 10 - Réf.937982

Afficher plus de détails

Informations sur ce bien :

L'intérieur :

  • 3 pièces
  • 57 m²
    Informations complémentaires
    Surface habitable : 57 m²
  • 2 Chambres
  • Cuisine américaine
    Informations complémentaires
    Américaine
  • 1 Salle d'eau
  • 1 Toilette
  • Séjour de 24 m²

L'extérieur :

  • Terrasse

Les équipements :

  • Ascenseur
  • Accès handicapé
  • Fibre optique
  • Interphone

Autres :

  • Chauffage :
    Électrique
  • Année de construction :
    2019
  • Exposition :
    Sud-ouest
  • Vue :
    Vue sur Ville
  • Étage :
    RDC
    Informations complémentaires
    Nombre d'étages de la construction : 7

Copropriété :

  • Copropriété :
    Oui
  • Nombre de lots :
    238
  • Charges annuelles :
    1 092 €
  • Taxe foncière :
    1 241 €
Synthèse
Appartement à Marseille 4
206 250 €
Surface : 57 m²
Prix au m² : 3 618 €
Transaction :
Achat
Référence :
340932437079
Mandat :
Exclusif
Date de publication :
Il y a plus de 7 jours
Appartement - 57 m² - 3 pièces
Performance énergétique
A
B
C
D
E
F
G
Gaz à effet de serre
A
B
C
D
E
F
G
Agent
CAPIFRANCE
CAPIFRANCE
Madame Marie TRIFAULT
Appeler
Écrire
Mettre en avant cette annonce
Signaler une erreur

Localisation :

L'adresse exacte n'est pas renseignée. Le bien se situe dans cette zone.

Performance énergétique :

Logement économe
A
B
82
kWh/m²/an
3
kg CO₂/m²/an
C
D
E
F
G
Logement énergivore
Faible émission de CO₂
A
3
kg CO₂/m²/an
B
C
D
E
F
G
Forte émission de CO₂
Date du diagnostic : 20 janvier 2026
Annonces similaires
Annonces immobilières récentes