• Appartement - 41 m² - 2 pièces
  • Appartement - 41 m² - 2 pièces
301 291 €
41 m²
2 pièces
1 chambre

Description :

Découvrez une opportunité unique d'investir dans un projet de réhabilitation en Déficit Foncier, situé en plein coeur du quartier prisé de Saint-Barnabé. Ce programme propose 7 logements répartis entre 2 T3 et 5 T2, chacun bénéficiant d'un extérieur privatif, qu'il s'agisse d'un balcon ou d'une terrasse. Une place de stationnement est également attribuée à chaque lot, offrant un confort de vie supplémentaire.

Idéalement situé, ce projet se trouve à proximité immédiate des commerces, des écoles et des transports en commun, assurant une qualité de vie optimale pour les futurs occupants. Avec 60 % de quote-part travaux, il constitue une excellente occasion d'allier avantage fiscal et valorisation patrimoniale.

Vous bénéficiez en outre d'une assurance dommages-ouvrages, d'une garantie de bonne exécution et d'une garantie fiscale, pour un investissement en toute sérénité.

Nos agents de recherche vous fourniront un suivi complet tout le long de votre projet : du montage de votre dossier à la remise des clés, nos conseillers sont à votre écoute. Bénéficiez de l'accompagnement d'un courtier en immobilier sans charges ajoutées.

www.guilde-patrimoine.fr
04.13.42.21.46

Afficher plus de détails

Informations sur ce bien :

L'intérieur :

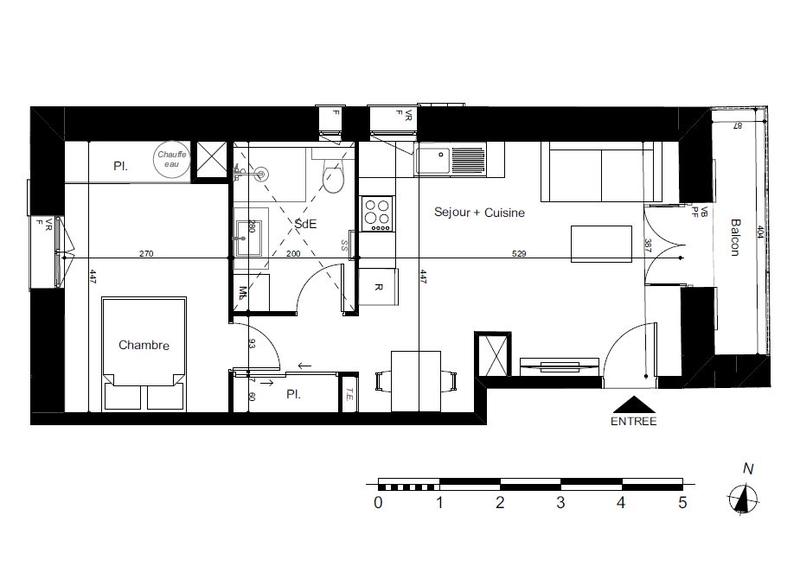
  • 2 pièces
  • 41 m²
  • 1 Chambre
  • Coin cuisine, équipée
    Informations complémentaires
    Coin cuisine, équipée
  • 1 Salle d'eau
  • 1 Toilette
  • Séjour de 24 m²

L'extérieur :

  • Balcon de 4 m²
  • Parking
  • Box

Autres :

  • Étage :
    2nd étage (dernier)
    Informations complémentaires
    Nombre d'étages de la construction : 2

Copropriété :

  • Copropriété :
    Oui
  • Nombre de lots :
    7
Synthèse
Appartement à Marseille 12
301 291 €
Surface : 41 m²
Prix au m² : 7 349 €
Transaction :
Achat
Référence :
VA7343-GUILDE
Date de publication :
Il y a plus de 7 jours
Appartement - 41 m² - 2 pièces
Agent
La Guilde Du Patrimoine
La Guilde Du Patrimoine
Appeler
Écrire
Mettre en avant cette annonce
Signaler une erreur

Localisation :

Performance énergétique :

Bien non soumis au Diagnostic de Performance Énergétique (DPE)

Annonces similaires
Annonces immobilières récentes