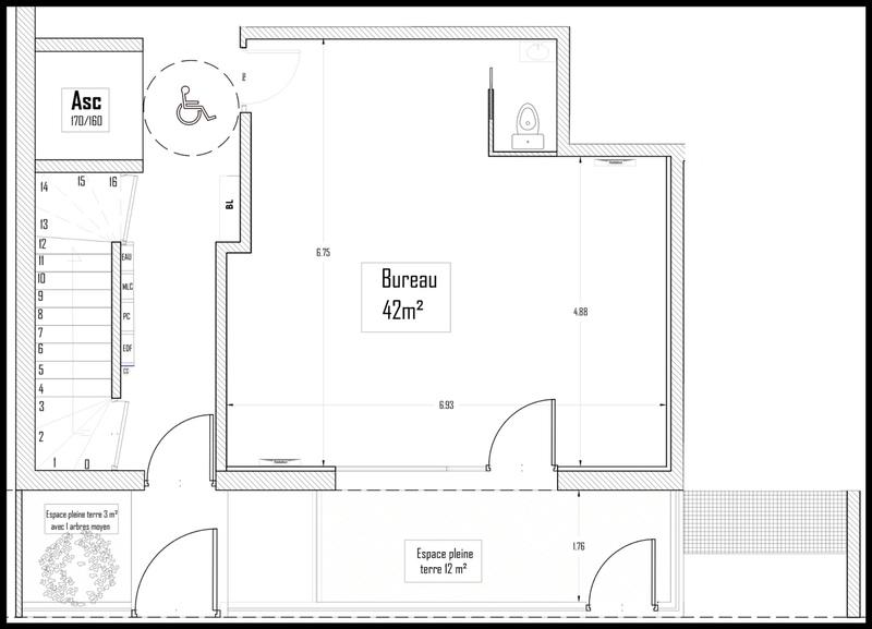
• Bureau - 42 m² - 1 pièce
  • Bureau - 42 m² - 1 pièce
250 000 €
42 m²
1 pièce

Description :

À découvrir à Malakoff, dans une petite copropriété au calme et disposant d'une double entrée, bureaux disponibles fin 2026, parfaitement adaptés aux professions libérales, cabinet d'architectes, comptables, consultants, thérapeutes, etc...
Surface fonctionnelle et modulable de 42M2.
Deux entrées indépendantes : idéal pour recevoir clients et collaborateurs en toute confidentialité.
Charges de copropriété faibles et chauffage individuel électrique basse consommation.
Environnement paisible, tout en étant proche des commerces et des transports.
Ce bien offre un cadre de travail agréable et professionnel, au sein d'un immeuble à taille humaine. Un investissement pérenne pour votre activité.
Disponible fin 2026 – réservez dès maintenant pour personnaliser votre espace selon vos besoins.
Contactez-nous pour plus d'informations, plans et conditions de commercialisation. Nombre de lots de la copropriété : 12, Montant moyen annuel de la quote-part de charges (budget prévisionnel) : 800€ soit 66€ par mois. Les honoraires sont à la charge du vendeur.
Les informations sur les risques auxquels ce bien est exposé sont disponibles sur le site Géorisques : www. georisques. gouv. fr.

Réseau Immobilier CAPIFRANCE - Votre agent commercial (RSAC N°340 138 858 - Greffe de NANTERRE) Vincent UETTWILLER Entrepreneur Individuel 07 69 97 25 97 - Réf.925566

Afficher plus de détails

Informations sur ce bien :

L'intérieur :

  • 1 pièce
  • 42 m²

Les équipements :

  • Accès handicapé
  • Fibre optique

Autres :

  • Étage :
    RDC
    Informations complémentaires
    Nombre d'étages de la construction : 4

Copropriété :

  • Copropriété :
    Oui
  • Nombre de lots :
    12
  • Charges annuelles :
    800,04 €
Synthèse
Bureau à Malakoff
250 000 €
Surface : 42 m²
Prix au m² : 5 952 €
Transaction :
Achat (professionnels)
Référence :
340932762139
Mandat :
Exclusif
Date de publication :
Il y a plus de 7 jours
Bureau - 42 m² - 1 pièce
Agent
CAPIFRANCE
CAPIFRANCE
Monsieur Vincent UETTWILLER
Appeler
Écrire
Mettre en avant cette annonce
Signaler une erreur

Localisation :

L'adresse exacte n'est pas renseignée. Le bien se situe dans cette zone.

Performance énergétique :

Bien non soumis au Diagnostic de Performance Énergétique (DPE)

Annonces similaires
Annonces immobilières récentes