• Appartement - 57 m² - 3 pièces
  • Appartement - 57 m² - 3 pièces
  • Appartement - 57 m² - 3 pièces
291 500 €
57 m²
3 pièces
2 chambres

Description :

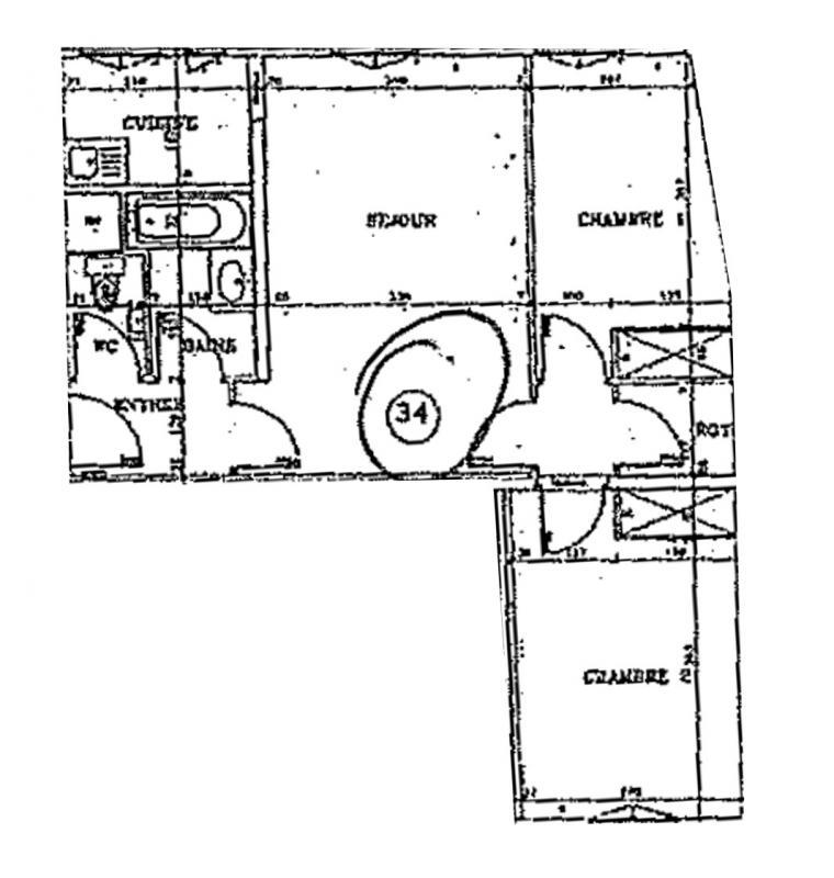
Situé au cœur de Malakoff, à seulement 720 m de la station "Mairie de Montrouge" (ligne 4) et 6 min à pied du métro "Malakoff - Plateau de Vanves" (ligne 13), cet appartement de 57,48 m² au 1er étage d'un immeuble ancien offre une opportunité rare pour les investisseurs. Caractéristiques principales :3 pièces lumineuses : pièce de vie de 13,57 m², deux chambres de 12,5 m², traversant (sud-est/nord-ouest).Charme de l'ancien : hauteur sous plafond de 2,70 m, idéal pour une rénovation personnalisée.Disposition fonctionnelle : entrée, cuisine indépendante, salle de bain, couloir desservant toutes les pièces.Annexes : cave pour un rangement supplémentaire.Chauffage : individuel électrique (DPE en cours d'actualisation). Situation locative : Loué sous bail Loi 1948 à une locataire de 90 ans, avec un loyer de 270 €/mois (3 240 €/an). Ce bail offre une décote significative sur le prix de vente, rendant cet investissement particulièrement attractif. À terme, le bien pourra être libéré ou reloué à un loyer de marché, augmentant sa rentabilité. Prix et charges :Prix de vente : 291 500 € (honoraires inclus)Charges de copropriété : 1 732 €/an.Comparaison : Ventes récentes d'appartements de même surface dans le même immeuble : 397 500 € (2020) et 349 500 € (2018). Le quartier : Idéalement situé dans un quartier résidentiel dynamique, à 5 min à pied de l'hypercentre de Malakoff (mairie, marché, commerces). Proximité immédiate de commodités (pharmacie, restaurants, supermarchés) et du square de Verdun. Accès rapide à Paris grâce aux lignes 4 et 13 du métro et au bus 126. Malakoff combine calme et proximité avec la capitale, parfait pour un investissement locatif pérenne. Pourquoi investir ici ?Décote liée au bail Loi 1948 : un prix attractif pour un bien de qualité.Potentiel de valorisation : les travaux de rénovation augmenteront sensiblement la valeur du bien.Emplacement stratégique : proche de Paris, bien desservi, quartier en développement.Contactez nous pour une visite ou plus d'informations ! Diagnostics disponibles.Maître Fabien ESCAVABAJA - Avocat associé - SMITH D'ORIA91, rue du Faubourg Saint-Honoré Paris 75008 - FranceMail : fescavabaja@smithdoria.com / www.smithdoria.comStandard : +33 (0)1 80 49 34 08

Afficher plus de détails

Informations sur ce bien :

L'intérieur :

  • 3 pièces
  • 57 m²
    Informations complémentaires
    Surface habitable : 57 m²
  • 2 Chambres
Synthèse
Appartement à Malakoff
291 500 €
Surface : 57 m²
Prix au m² : 5 114 €
Transaction :
Achat
Référence :
A5758
Mandat :
Exclusif
Date de publication :
Il y a plus de 7 jours
Appartement - 57 m² - 3 pièces
Agent
AAMTI
AAMTI
Me Jean-Olivier D'ORIA
Appeler
Écrire
Mettre en avant cette annonce
Signaler une erreur

Localisation :

L'adresse exacte n'est pas renseignée. Le bien se situe dans cette zone.
Annonces similaires
Annonces immobilières récentes