Maison - 95 m² - 5 pièces à Macheren

favoris
  • Maison - 95 m² - 5 pièces
  • Maison - 95 m² - 5 pièces
  • Maison - 95 m² - 5 pièces
285 000 €
95 m²
5 pièces
3 chambres

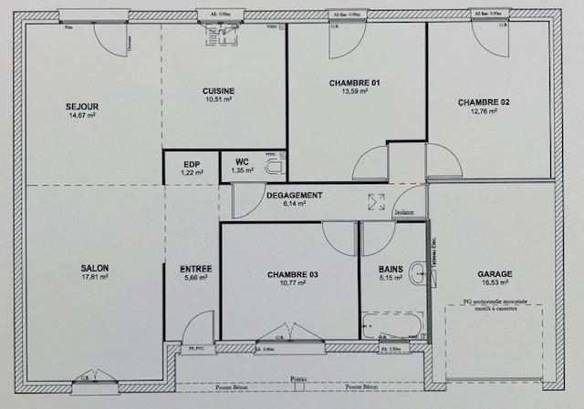
Description :

Bonjour ,
Nous vous proposons de découvrir le projet de construction de cette maison en plain pied avec trois chambres et un espace de vie communiquant avec le jardin sur la commune de hombourg haur dans un lotissment calme sur une parcelle viabilisée et prête a construire, située à quelques minute de saint avold et des accès autoroutiers vers l ' Allemagne et le Luxembourg / situation idéale pour une famille et pour une première construction.
les plans sont modulables de même que le style de la maison .
Le projet proposé comprend le terrain , les frais de notaire / les surfaces et l ' organisation de la maison sont modulables selon vos souhaits et votre budget !
la maison est chauffée par le sol à l ' aide d'une pompe à chaleur , les volets sont motorisés de même que la porte de garage , les revêtements de sol ainsi que les sanitaires ne sont pas inclus dans le tarif

Afficher plus de détails

Informations sur ce bien :

L'intérieur :

  • 5 pièces
  • 95 m²
    Informations complémentaires
    Surface habitable : 95 m²
  • 3 Chambres
  • Séjour de 35 m²

L'extérieur :

  • Garage

Autres :

  • Chauffage :
    Aérothermie
  • Exposition :
    Sud-ouest, Nord-est
  • Nombre de niveaux :
    1
Synthèse
Maison à Macheren
285 000 €
Surface : 95 m²
Prix au m² : 3 000 €
Transaction :
Neuf
Référence :
f5_plain_pied_secteur_macheren
Nom du programme :
maison de plain pied
Date de publication :
Il y a plus de 7 jours
Maison - 95 m² - 5 pièces
Agent
MAISON D’EN France LORRAINE NORD
MAISON D’EN France LORRAINE NORD
Claude GULDNER
Appeler
Écrire
Mettre en avant cette annonce
Signaler une erreur

Localisation :

L'adresse exacte n'est pas renseignée. Le bien se situe dans cette zone.
Annonces similaires
Annonces immobilières récentes