• Appartement - 70 m² - 3 pièces
  • Appartement - 70 m² - 3 pièces
  • Appartement - 70 m² - 3 pièces
  • Appartement - 70 m² - 3 pièces
  • Appartement - 70 m² - 3 pièces
  • Appartement - 70 m² - 3 pièces
  • Appartement - 70 m² - 3 pièces
  • Appartement - 70 m² - 3 pièces
115 000 €
70 m²
3 pièces
2 chambres

Description :

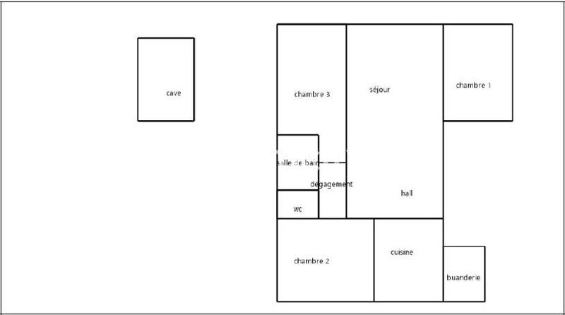
59390 - LYS-LEZ-LANNOY – APPARTEMENT D'UNE SUPERFICIE D'ENVIRON 70 m2 + 2 CHAMBRES (possibilité 3)+ CAVE + STATIONNEMENT

EXCLUSIVITE

Efficity, agence qui estime votre bien en ligne et Simon MENART, vous présentent cet APPARTEMENT de 70m2 offrant un SALON, SALLE A MANGER, CUISINE OUVERTE, 2 CHAMBRES (14 et 10m2), une SDB (4.72 m2) et d'un WC séparé (1.68m2). Possibilité de refermer l'espace salon pour y accueillir une 3ème chambre.

Niché entre la rue Jules Guesde et la rue des Ecoles, dans un cadre verdoyant avec une vue dégagée, cet APPARTEMENT LUMINEUX offre un cadre de vie idéal.

Une cave au sous-sol vient compléter ce bien.

Stationnement facile, parking à disposition en bas de l'appartement.

A proximité :

Commerces :

Lidl 469 m
Match 596 m
Épicerie 622 m

Éducation

École élémentaire Paul Bert 247 m
Crèche La Pépinière 276 m
Groupe scolaire Paul Bert 283 m
École maternelle Paul Bert 341 m
École maternelle Anatole France 349 m

Santé

Pharmacie de Lys 434 m
Clinique 502 m
La Pharmacie Lannoy 570 m
Pharmacie 574 m
Pharmacie Mutualiste 654 m

Transports :

Bus P.N. Lannoy 168 m

Informations complémentaires :

Taxe foncière : 621 €
Etage 3/4 SANS ASCENSEUR

A propos de la copropriété :

Pas de procédure en cours
Nombre de lots : 180
Charges prévisionnelles annuelles : 2100 €
Date de réalisation du diagnostic énergétique : 19/09/2023

Montant estimé des dépenses annuelles d'énergie pour un usage standard : entre 1070 € et 1 490 € par an. Prix moyens des énergies indexés sur l'année 2022.

Contactez-moi dès aujourd'hui pour une visite guidée et laissez-vous séduire par votre futur chez-vous !

A PROXIMITE IMMEDIATE, COMMERCES, ECOLES, et AXES ROUTIERS.
Prix de vente : 115.000 EUROS HAI (Honoraires charge acquéreur)
Contact : Simon MENART, tél : 06.28.203.652, smenart@efficity.com

INFORMATIONS COMPLEMENTAIRES :
Les informations sur les risques auxquels ce bien est exposé sont disponibles sur le site Georisque : georisques. gouv. fr
Simon Ménart - EI - est Agent Commercial mandataire en immobilier, immatriculé au Registre Spécial des Agents Commerciaux du Tribunal de Commerce de Lille sous le n°909199788.
Siège social du mandant : effiCity, 48 avenue de Villiers - 75017 PARIS - Société par Actions Simplifiée, société au capital de 132 373,05 euros, immatriculée au RCS Paris 497 617 746 et titulaire de la Carte professionnelle CPI 7501 2015 000 002 025 - CCI Paris IDF - Caisse de Garantie : GALIAN Assurances 89 rue de la Boétie 75008 Paris

Afficher plus de détails

Informations sur ce bien :

L'intérieur :

  • 3 pièces
  • 70 m²
    Informations complémentaires
    Surface habitable : 71 m²
  • 2 Chambres
  • 1 Salle de bain
  • Cave

L'extérieur :

  • 2 Parkings

Autres :

  • Chauffage :
    Collectif, Radiateur, Gaz
  • Exposition :
    Sud
  • Étage :
    3ème étage
    Informations complémentaires
    Nombre d'étages de la construction : 4

Copropriété :

  • Copropriété :
    Oui
  • Nombre de lots :
    180
  • Charges annuelles :
    2 100 €
  • Taxe foncière :
    621 €
Synthèse
Appartement à Lys-lez-Lannoy
115 000 €
Surface : 70 m²
Prix au m² : 1 643 €
Transaction :
Achat
Référence :
187840
Mandat :
Exclusif
Date de publication :
Il y a plus de 7 jours
Appartement - 70 m² - 3 pièces
Performance énergétique
A
B
C
D
E
F
G
Gaz à effet de serre
A
B
C
D
E
F
G
Agent
RESEAU EFFICITY
RESEAU EFFICITY
M. Simon Ménart
Appeler
Écrire
Mettre en avant cette annonce
Signaler une erreur

Localisation :

Performance énergétique :

Logement économe
A
B
C
D
E
261
kWh/m²/an
53
kg CO₂/m²/an
F
G
Logement énergivore
Faible émission de CO₂
A
B
C
D
E
53
kg CO₂/m²/an
F
G
Forte émission de CO₂
Date du diagnostic : 19 septembre 2023
Annonces similaires
Annonces immobilières récentes