• Appartement - 25 m² - 1 pièce
542 € / mois
25 m²
1 pièce

Description :

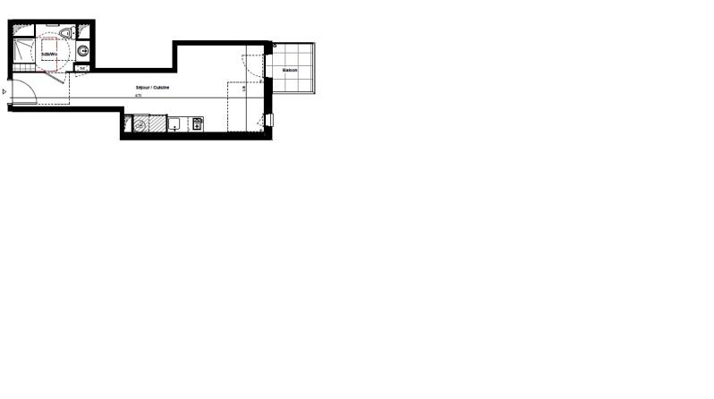
A402 - L'ATHENEE - T1 DE 25M² LUMINEUX ET CALME AVEC BALCON DONNANT SUR L'INTERIEUR D'UNE PETITE RESIDENCE RECENTE BBC DE STANDING. Il est composé d'une entrée, d'un grand séjour de 22m² ouvert sur cuisine US équipée et meublée (hotte, plaques, frigo meubles haut et bas), d'une salle d'eau avec douche à l'italienne, meuble sous vasque et sèche serviettes.
Garage individuel fermé en sous-sol sécurisé. Vidéophone. Rangements.
PROCHE TOUS COMMERCES ET TRANSPORTS (TRAM T6 ET BUS).

ZONE SOUMISE A ENCADREMENT DES LOYERS
LOYER DE REFERENCE MAJORE (LOYER DE BASE A NE PAS DEPASSER) : 482.27 EUR
LOYER DE BASE : 422.00 EUR
Consommation d'énergie totale comprise entre 510 EUR et 730 EUR par an (prix moyens des énergies indexés en 2021,2022,2023).

Les informations sur les risques auxquels ce bien est exposé sont disponibles sur le site Géorisques : www. georisques. gouv. fr

Afficher plus de détails

Informations sur ce bien :

L'intérieur :

  • 1 pièce
  • 25 m²
    Informations complémentaires
    Surface habitable : 26 m²
  • 1 Salle d'eau

Autres :

  • Année de construction :
    2019
  • Étage :
    4ème étage
Synthèse
Appartement à Lyon 8
542 € / mois
Surface : 25 m²
Transaction :
Location
Référence :
8135
Charges :
23 €
Informations complémentaires
Les charges sont inclues dans le loyer affiché
Remboursement annuel par le locataire
Montant de la caution :
482 €
Honoraires :
353,27 €
Informations complémentaires
Dont honoraires état des lieux : 77,37 €
Mandat :
Exclusif
Disponibilité :
18/01/2026
Date de publication :
Le 06 janv. à 09:02
Appartement - 25 m² - 1 pièce
Performance énergétique
A
B
C
D
E
F
G
Gaz à effet de serre
A
B
C
D
E
F
G
Agent
CONFIANCE IMMOBILIER MONPLAISIR LOCATION
CONFIANCE IMMOBILIER MONPLAISIR LOCATION
Appeler
Écrire
Mettre en avant cette annonce
Signaler une erreur

Localisation :

L'adresse exacte n'est pas renseignée. Le bien se situe dans cette zone.

Performance énergétique :

Logement économe
A
B
C
D
209
kWh/m²/an
6
kg CO₂/m²/an
E
F
G
Logement énergivore
Faible émission de CO₂
A
6
kg CO₂/m²/an
B
C
D
E
F
G
Forte émission de CO₂
Date du diagnostic : 02 août 2025
Annonces similaires
Annonces immobilières récentes