• Appartement - 52 m² - 2 pièces
  • Appartement - 52 m² - 2 pièces
  • Appartement - 52 m² - 2 pièces
  • Appartement - 52 m² - 2 pièces
  • Appartement - 52 m² - 2 pièces
  • Appartement - 52 m² - 2 pièces
  • Appartement - 52 m² - 2 pièces
  • Appartement - 52 m² - 2 pièces
119 500 €
52 m²
2 pièces
1 chambre

Description :

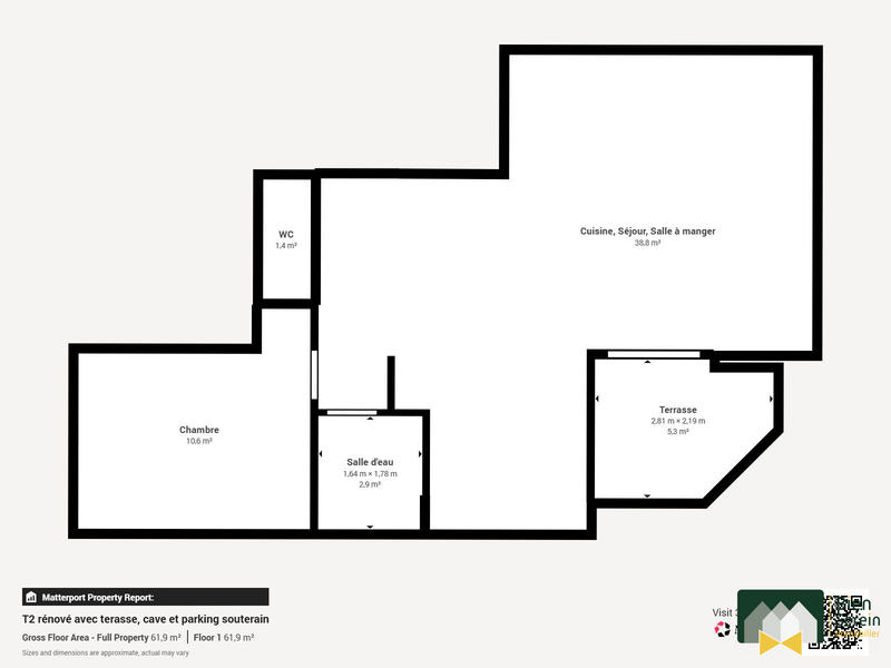
T2 SANS TRAVAUX AVEC CAVE ET PARKING SOUTERRAIN - LUCE (28220)

Bienvenue dans votre futur chez vous ! À 1km de la place des épars, nous avons le plaisir de vous présenter un appartement entièrement rafraichit avec une vue belle terasse, cave et stationnement en sous terrain.

Situé au RDC, cet appartement est décomposé comme suit :

- Une belle entrée avec placard
- Séjour cuisine de 38m²
- Chambre
- Salle d'eau
- WC indépendant

Côté confort

- Terrasse couverte
- Place de parking privative en souterrain.
- Cave privative
- Aucun travaux à prévoir

À propos de la copropriété

Résidence bien tenue, avec parties communes en bon état. Les charges mensuelles de 190€ intègrent les services suivants :
- Chauffage collectif
- Eau chaude et froide de l'appartement
- Entretien des parties communes intérieures et extérieures
- Ascenseur

L'emplacement :

Vous pourrez bénéficier de tout les commerces et loisirs de la ville ainsi que le réseau filibus au pied de l'appartement. La place des épars sera à 1km (15 minutes à pieds et 5 minutes à vélo) et la gare à seulement 1,5km (20 minutes à pied 7 minutes à vélo)

N'hésitez pas à contacter votre agent au Noeud Pap' pour obtenir plus d'informations et visiter cet appartement ! ?

Honoraires à la charge du vendeur. Dans une copropriété de 177 lots. Quote-part moyenne du budget prévisionnel 2 265 €/an. Aucune procédure n'est en cours. Classe énergie D, Classe climat D Montant moyen estimé des dépenses annuelles d'énergie pour un usage standard, établi à partir des prix de l'énergie de l'année 2021 : entre 520.00 et 790.00 €. Les informations sur les risques auxquels ce bien est exposé sont disponibles sur le site Géorisques : georisques.gouv.fr.

Votre conseiller Bien Serein immobilier : Charly CHESNEAU
Agent commercial (Entreprise individuelle)
RSAC 990 102 493

Afficher plus de détails

Informations sur ce bien :

L'intérieur :

  • 2 pièces
  • 52 m²
  • 1 Chambre
  • Cuisine américaine, équipée
    Informations complémentaires
    Américaine, équipée
  • 1 Salle d'eau
  • 1 Toilette
  • Séjour de 37 m²
  • Cave

L'extérieur :

  • Terrasse
  • Parking
  • Box

Les équipements :

  • Ascenseur

Autres :

  • Chauffage :
    Collectif, Gaz
  • Année de construction :
    1990
  • Exposition :
    Sud, Ouest
  • Étage :
    RDC
    Informations complémentaires
    Nombre d'étages de la construction : 4

Copropriété :

  • Copropriété :
    Oui
  • Nombre de lots :
    177
  • Charges annuelles :
    2 265 €
Synthèse
Appartement à Lucé
119 500 €
Surface : 52 m²
Prix au m² : 2 298 €
Transaction :
Achat
Référence :
732-BIENSEREIN28
Mandat :
Exclusif
Date de publication :
Il y a plus de 7 jours
Appartement - 52 m² - 2 pièces
Performance énergétique
A
B
C
D
E
F
G
Gaz à effet de serre
A
B
C
D
E
F
G
Agent
Bien Serein immobilier
Charly CHESNEAU
Appeler
Écrire
Mettre en avant cette annonce
Signaler une erreur

Localisation :

Performance énergétique :

Logement économe
A
B
C
D
184
kWh/m²/an
36
kg CO₂/m²/an
E
F
G
Logement énergivore
Faible émission de CO₂
A
B
C
D
36
kg CO₂/m²/an
E
F
G
Forte émission de CO₂
Date du diagnostic : 29 décembre 2021
Estimation des coûts annuels d’énergie du logement : 520 € à 790 €
Annonces similaires
Annonces immobilières récentes