Maison - 109 m² - 6 pièces à Lubey
favoris
295 000 €
Description :
bonjour ,
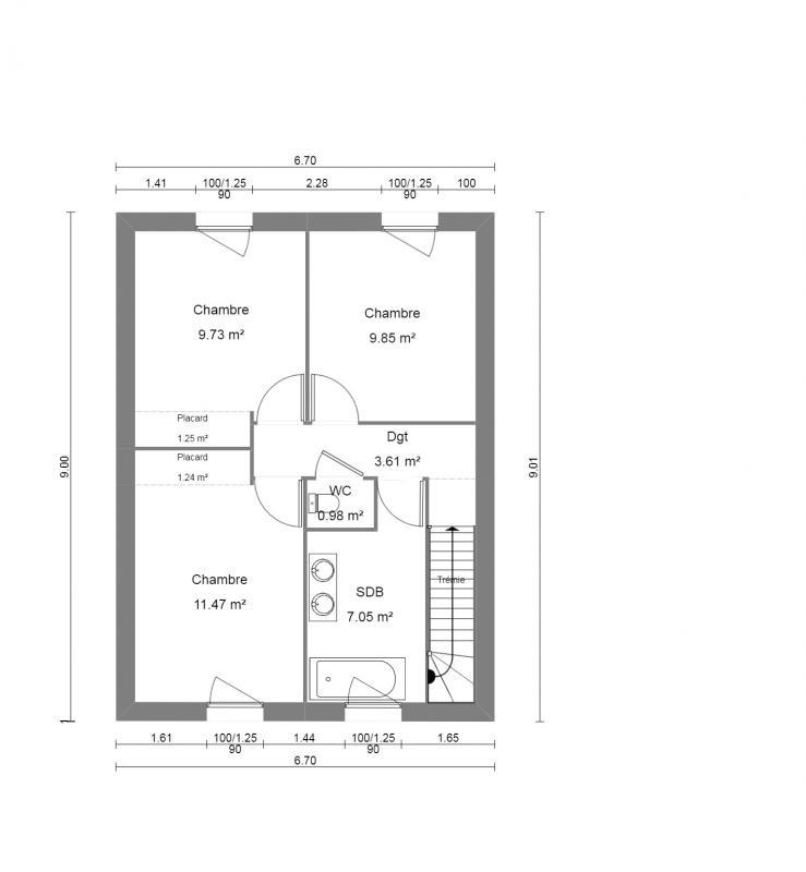
Nous vous proposons de découvrir en exclusivité ce projet de construction d 'une maison avec suite parentale , trois chambres et un vaste espace de jour , un garage .... La maison est chauffée par le sol , Le terrain de 13 ARES est situé en dehors de tout lotissement , dans un secteur très calme et à 15 minutes de Briey . Un écrin de verdure et une belle opportunité pour une famille à la recherche d'un environnement calme et proche de la nature !
Afficher plus de détails
Informations sur ce bien :
L'intérieur :
-
6 pièces
-
109 m²Informations complémentairesSurface habitable : 109 m²
-
4 Chambres
-
Séjour de 42 m²
L'extérieur :
-
Garage
Autres :
-
Chauffage :Aérothermie
-
Exposition :Est, Ouest
-
Nombre de niveaux :2
Synthèse
Maison à Lubey
295 000 €
Surface :
109 m²
Prix au m² :
2 706 €
Transaction :
Neuf
Référence :
c753
Nom du programme :
étage
Date de publication :
Il y a plus de 7 jours
Contacter l'annonceur
Agent
PIERRE & CREATION
Claude GULDNER
Mettre en avant cette annonce
Signaler une erreur
Localisation :
L'adresse exacte n'est pas renseignée. Le bien se situe dans cette zone.
Ventes de maisons à proximité
- 2 ventes de maisons à Lantéfontaine (3.5 km)
- 3 ventes de maisons à Mancieulles (5.3 km)
- 4 ventes de maisons à Norroy-le-Sec (5.3 km)
- 29 ventes de maisons à Briey (5.8 km)
- 6 ventes de maisons à Mairy-Mainville (6.6 km)
- 22 ventes de maisons à Hatrize (6.8 km)
- 2 ventes de maisons à Valleroy (6.9 km)
- 3 ventes de maisons à Joudreville (7.3 km)
- 3 ventes de maisons à Moineville (7.7 km)