• Bureau - 70 m² - 2 pièces
  • Bureau - 70 m² - 2 pièces
  • Bureau - 70 m² - 2 pièces
  • Bureau - 70 m² - 2 pièces
  • Bureau - 70 m² - 2 pièces
  • Bureau - 70 m² - 2 pièces
  • Bureau - 70 m² - 2 pièces
1 021 € HT / mois
70 m²
2 pièces

Description :

Bureaux 70 m² - Lanester - Zone d'activité de Kerpont

À louer, bureaux lumineux de 70 m², situés au 1er étage d'un centre d'affaires en excellent état.

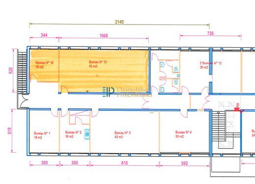
? 1 bureau de 15 m² + 1 open-space de 55 m²
? Sanitaires - double vitrage
? Parking commun
? Parties communes soignées

? Loyer : 840 € HT/mois
Charges : 181 € HT/mois

? Situés au Pôle Technellys, au coeur d'un environnement économique dynamique regroupant entreprises et services.

Idéal pour activité tertiaire, profession libérale, agence ou société de services.

Honoraires de 3 024 € HT à la charge du locataire. Provision sur charges 181,48 € HT/mois, régularisation annuelle. Dépôt de garantie 1 680 €. DPE en cours. Les informations sur les risques auxquels ce bien est exposé sont disponibles sur le site Géorisques : georisques.gouv.fr. .
Les informations sur les risques naturels, miniers, ou technologiques, auxquels ces biens sont exposés, sont disponibles sur le site www.georisques.gouv.fr

Afficher plus de détails

Informations sur ce bien :

L'intérieur :

  • 2 pièces
  • 70 m²

L'extérieur :

  • Parking

Autres :

  • Étage :
    RDC
Synthèse
Bureau à Lorient
1 021 € HT / mois
Surface : 70 m²
Transaction :
Location (locaux professionnels)
Référence :
LP2280-IMMOPROBZH
Charges :
181,48 €
Informations complémentaires
Les charges sont inclues dans le loyer affiché
Prévisionnelles mensuelles avec régularisation annuelle
Montant de la caution :
1 680 €
Honoraires :
3 024 €
Informations complémentaires
Honoraires hors taxes
Date de publication :
Il y a plus de 7 jours
Bureau - 70 m² - 2 pièces
Agent
L'Immobilier Professionnel
L'Immobilier Professionnel
Benjamin LE DOZE
Appeler
Écrire
Mettre en avant cette annonce
Signaler une erreur

Localisation :

Annonces similaires
Annonces immobilières récentes