• Studio - 29 m² - 1 pièce
  • Studio - 29 m² - 1 pièce
  • Studio - 29 m² - 1 pièce
  • Studio - 29 m² - 1 pièce
  • Studio - 29 m² - 1 pièce
58 000 €
29 m²
1 pièce

Description :

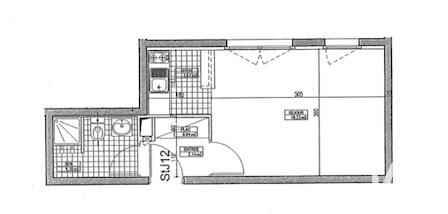
Iad France - Ludovic Merigaud vous propose : NOUVEAUTÉ – Studio avec ascenseur, parking et cave – Idéal investisseur ✨ Situé au premier étage d’une résidence sécurisée avec ascenseur, ce studio fonctionnel constitue une opportunité idéale pour un investissement locatif serein. L’appartement se compose d’une pièce de vie, offrant un espace confortable et bien agencé, ainsi que d’une salle d’eau avec WC. Une cave et une place de parking privative viennent compléter ce bien, apportant un réel confort au quotidien et une valeur ajoutée appréciable. Atout majeur : le bien est actuellement loué, avec un loyer mensuel de 391 €, dont 80 € de charges, garantissant une rentabilité immédiate sans vacance locative. - Résidence bien entretenue - Stationnement privatif - Cave incluse - Investissement clé en main Un bien idéal pour investisseurs à la recherche d’un placement sécurisé. La presente annonce immobiliere vise 3 lots situés dans une copropriété de 169 lots au total et ne faisant l'objet d'aucune procédure en cours citée à l'article L. 721-1 du code de la construction et de l'habitation. Montant moyen mensuel de charges déclaré par le vendeur : 80€ par mois (soit 960 € annuel). Honoraires d'agence à la charge du vendeur. Information d'affichage énergétique sur ce bien : classe ENERGIE C indice 172 et classe CLIMAT C indice 31. Les informations sur les risques auxquels ce bien est exposé, y compris l'obligation légale de débroussaillement, sont disponibles sur le site Géorisques : http://www.georisques.gouv.fr. La présente annonce immobilière a été rédigée sous la responsabilité éditoriale de M Ludovic Merigaud mandataire indépendant en immobilier (sans détention de fonds), agent commercial de la SAS I@D France immatriculé au RSAC de Limoges sous le numéro 852339118, titulaire de la carte de démarchage immobilier pour le compte de la société I@D France SAS.

Afficher plus de détails

Informations sur ce bien :

L'intérieur :

  • 1 pièce
  • 29 m²
    Informations complémentaires
    Surface habitable : 29 m²
  • Cave

Les équipements :

  • Ascenseur
  • Interphone
  • Digicode

Autres :

  • Chauffage :
    Individuel, Radiateur, Électrique
  • Année de construction :
    2003
  • Mitoyenneté :
    Non

Copropriété :

  • Copropriété :
    Oui
  • Nombre de lots :
    169
  • Charges annuelles :
    960 €
Synthèse
Studio à Limoges
58 000 €
Surface : 29 m²
Prix au m² : 2 000 €
Transaction :
Achat
Référence :
1986061
Date de publication :
Aujourd'hui à 07:46
Studio - 29 m² - 1 pièce
Performance énergétique
A
B
C
D
E
F
G
Gaz à effet de serre
A
B
C
D
E
F
G
Agent
iad france
iad france
Ludovic Merigaud
Appeler
Écrire
Mettre en avant cette annonce
Signaler une erreur

Localisation :

L'adresse exacte n'est pas renseignée. Le bien se situe dans cette zone.

Performance énergétique :

Logement économe
A
B
C
D
172
kWh/m²/an
31
kg CO₂/m²/an
E
F
G
Logement énergivore
Faible émission de CO₂
A
B
C
D
31
kg CO₂/m²/an
E
F
G
Forte émission de CO₂
Date du diagnostic : 29 décembre 2025
Annonces similaires
Annonces immobilières récentes