Maison - 104 m² - 5 pièces à Lesperon

favoris
  • Maison - 104 m² - 5 pièces
  • Maison - 104 m² - 5 pièces
  • Maison - 104 m² - 5 pièces
  • Maison - 104 m² - 5 pièces
  • Maison - 104 m² - 5 pièces
  • Maison - 104 m² - 5 pièces
  • Maison - 104 m² - 5 pièces
  • Maison - 104 m² - 5 pièces
268 000 €
104 m²
5 pièces
3 chambres

Description :

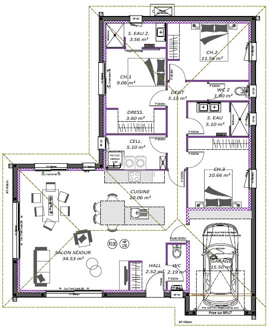
Votre maison à Lesperon, à moins de 20 minutes de l’océan et tout près de l’A63 qui vous mènera à Bordeaux comme à Bayonne. Maisons d’en France Sud-Ouest vous propose, à titre d’exemple, de construire cette contemporaine maison neuve confortable et lumineuse de 104 m² + garage. Optimisée et confortable, elle se compose d’une pièce de vie de plus de 45 m², super lumineuse grâce à sa triple exposition et ses généreuses baies vitrées. La cuisine semi ouverte se prolonge d’un cellier pratique pouvant recevoir de nombreux rangements. Deux chambres avec placards intégrés et une suite parentale avec salle d’eau privative et dressing constituent le coin nuit. Que viennent compléter la salle d’eau équipée d’une double vasque et d’une douche à l’italienne et un WC séparé. Le système de chauffage suggéré, en gainable PAC Air / Air, vous assurera le plus grand confort, tant en chauffage qu’en rafraîchissement, dans le respect de la RE 2020, tout en vous assurant de très substantielles économies. Maison « tout inclus » prête à décorer, (hors peintures, parquets dans les chambres et cuisine). Pas de plan type chez Maisons d’en France : plan, disposition, système de chauffage, tout reste entièrement personnalisable selon vos envies. Terrain viabilisé de 600 m². Non mandaté pour la vente du terrain. Prix incluant maison + terrain + frais de notaire + terrassement + raccordements à partir de 268 000 euros. Dommages-ouvrage et garanties de parfait achèvement et de livraison à prix et délais convenus incluses. Pour plus de renseignements, n'hésitez pas à joindre Katherine FERRERE, votre conseillère Maisons d'en France Sud-Ouest, agence de Castets. Référence : KF-LESP-546.

Afficher plus de détails

Informations sur ce bien :

L'intérieur :

  • 5 pièces
  • 104 m²
    Informations complémentaires
    Surface habitable : 104 m²
  • 3 Chambres

Autres :

  • Mitoyenneté :
    Non
Synthèse
Maison à Lesperon
268 000 €
Surface : 104 m²
Prix au m² : 2 577 €
Transaction :
Neuf
Référence :
KF-LESP-546
Date de publication :
Il y a plus de 7 jours
Maison - 104 m² - 5 pièces
Agent
Maisons d’en France - Sud Ouest Dax
Maisons d’en France - Sud Ouest Dax
Appeler
Écrire
Mettre en avant cette annonce
Signaler une erreur

Localisation :

L'adresse exacte n'est pas renseignée. Le bien se situe dans cette zone.
Annonces similaires
Annonces immobilières récentes