• Appartement - 47 m² - 2 pièces
  • Appartement - 47 m² - 2 pièces
  • Appartement - 47 m² - 2 pièces
194 000 €
47 m²
2 pièces
1 chambre

Description :

Sous compromis : VOTRE NOUVEAU LOGEMENT AU DERNIER ÉTAGE ENTRE VILLE EN NATURE

Situé au coeur de Léognan, dans une résidence calme et bien entretenue, ce charmant appartement T2 se trouve au premier et dernier étage d'un petit bâtiment à taille humaine. Idéalement placé, il bénéficie de la proximité immédiate des commerces, services, écoles et transports, tout en offrant un cadre de vie paisible.

Dès l'entrée, vous serez séduit par une agréable pièce de vie baignée de lumière grâce à sa double exposition, offrant une belle sensation d'espace et de clarté. Cet espace s'ouvre sur une terrasse d'environ 7 m², idéale pour profiter des beaux jours, prendre ses repas à l'extérieur ou créer un coin lecture au calme.
L'appartement dispose d'une grande chambre avec placard intégré, offrant un espace nuit confortable et fonctionnel. Une salle d'eau moderne ainsi qu'un WC indépendant complètent l'ensemble.

Pour plus de confort au quotidien, deux places de parking privatives sont vendues avec l'appartement (6 000€/place soit 12 000€ en sus obligatoire). Ce bien, à la fois pratique et bien situé, conviendra parfaitement à un premier achat, un pied-à-terre ou un investissement locatif de qualité.

VOTRE NOUVEAU LOGEMENT AU DERNIER ÉTAGE ENTRE VILLE EN NATURE

Honoraires à la charge du vendeur. Dans une copropriété de 45 lots. Aucune procédure n'est en cours. DPE en cours. Les informations sur les risques auxquels ce bien est exposé sont disponibles sur le site Géorisques : georisques.gouv.fr.

Votre conseiller RH Patrimoine : Marc VEYRET
Agent commercial (Entreprise individuelle)

Afficher plus de détails

Informations sur ce bien :

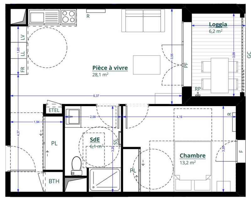
L'intérieur :

  • 2 pièces
  • 47 m²
  • 1 Chambre
  • 1 Salle d'eau
  • 1 Toilette
  • Séjour de 28 m²

L'extérieur :

  • Balcon de 7 m²
  • Parking
  • 2 Box

Les équipements :

  • Interphone

Autres :

  • Chauffage :
    Individuel, Électrique
  • Exposition :
    Sud, Ouest
  • Vue :
    Dégagée
  • Étage :
    1er étage
    Informations complémentaires
    Nombre d'étages de la construction : 1

Copropriété :

  • Copropriété :
    Oui
  • Nombre de lots :
    45
Synthèse
Appartement à Léognan
194 000 €
Surface : 47 m²
Prix au m² : 4 128 €
Transaction :
Achat
Référence :
VA3121-RHPATRI
Date de publication :
Il y a plus de 7 jours
Appartement - 47 m² - 2 pièces
Agent
RH Patrimoine
RH Patrimoine
Marc VEYRET
Appeler
Écrire
Mettre en avant cette annonce
Signaler une erreur

Localisation :

L'adresse exacte n'est pas renseignée. Le bien se situe dans cette zone.
Annonces similaires
Annonces immobilières récentes