• Terrain constructible - 486 m²
  • Terrain constructible - 486 m²
  • Terrain constructible - 486 m²
81 000 €
486 m²

Description :

RARETÉ SUR LE SECTEUR

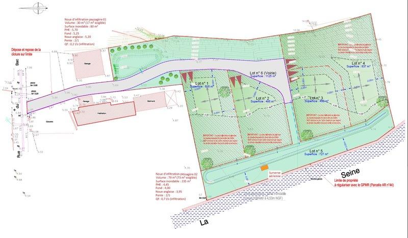
Sur la commune du Trait, cette belle parcelle de 486 m² offre l'opportunité de construire votre maison dans un environnement privilégié, avec un accès direct à la nature et une vue dégagée sur les bords de Seine.
Le terrain s'inscrit au sein d'un futur lotissement intimiste de seulement 4 maisons, garantissant calme et qualité de vie.

Les atouts de la parcelle :

Emplacement recherché : situation rare en bordure de Seine, dans un cadre naturel préservé.

Projet sécurisé : permis d'aménager accordé pour 6 lots, dont 4 constructibles.

Liberté de construction : terrain libre de constructeur, vous choisissez votre architecture et vos artisans.

Réseaux en bordure : eau, électricité et tout-à-l'égout à proximité immédiate.

Possibilité d'acquérir la parcelle de plus de 4000 m² dans sa totalité

Un secteur attractif pour un projet de construction alliant cadre de vie et valeur patrimoniale. Les honoraires sont à la charge du vendeur.
Les informations sur les risques auxquels ce bien est exposé sont disponibles sur le site Géorisques : www. georisques. gouv. fr.

Réseau Immobilier CAPIFRANCE - Votre agent commercial (RSAC N°882 353 204 - Greffe de LE HAVRE) Corentin CORDEAUX Entrepreneur Individuel 06 51 34 52 32 - Réf.940983

Afficher plus de détails

Informations sur ce bien :

L'intérieur :

  • 486 m²

Terrain :

  • Viabilisé :
    Oui
  • Raccordé au gaz :
    Oui
Synthèse
Terrain constructible à Le Trait
81 000 €
Surface : 486 m²
Prix au m² : 167 €
Transaction :
Achat
Référence :
340936108179
Date de publication :
Il y a plus de 7 jours
Terrain constructible - 486 m²
Agent
CAPIFRANCE
CAPIFRANCE
Monsieur Corentin CORDEAUX
Appeler
Écrire
Mettre en avant cette annonce
Signaler une erreur

Localisation :

L'adresse exacte n'est pas renseignée. Le bien se situe dans cette zone.
Annonces similaires
Annonces immobilières récentes