• Terrain - 405 m²
  • Terrain - 405 m²
  • Terrain - 405 m²
  • Terrain - 405 m²
  • Terrain - 405 m²
113 000 €
405 m²

Description :

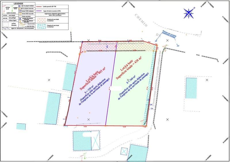
Située sur les hauteurs du Tampon, dans le quartier recherché de Pont d'Yves, découvrez cette jolie parcelle plate de 405 m².
À environ 700 mètres d'altitude, vous bénéficierez d'un cadre paisible avec la possibilité d'avoir une vue dégagée mer et montagne.

? Informations principales :

- Superficie : 405 m²

- Non viabilisé

- Terrain plat, idéal pour implanter une maison moderne ou traditionnelle.

- Zone Uc (PLU) :

- Emprise au sol non réglementée

- Auteur des constructions : 9 m à l'égout du toit / 13 m au faîtage

- Annexes et dépendances : 3,5 m max

? Atouts du secteur :

Environnement calme et serein

Altitude agréable (700 m)

Vue mer et montagne possible

? Investir grâce au Girardin à l'IS :
Ce dispositif de défiscalisation ultramarin vous permet d'obtenir un crédit ou une réduction d'impôt sur les sociétés en investissant dans une construction neuve destinée à la location.
Les conditions (durée de mise en location, plafonds de loyers et de ressources) garantissent un cadre sécurisé et avantageux.

? Pour vous accompagner, nous pouvons vous mettre en relation avec un professionnel qualifié capable de créer la société adaptée à ce type d'investissement.

? Un terrain qui allie cadre de vie exceptionnel, investissement rentable et accompagnement sur mesure !

Honoraires à la charge du vendeur. Les informations sur les risques auxquels ce bien est exposé sont disponibles sur le site Géorisques : georisques.gouv.fr.

Votre conseiller eXp France : José STANCA
Agent commercial (Entreprise individuelle)
RSAC 894206317 ST PIERRE

Afficher plus de détails

Informations sur ce bien :

L'intérieur :

  • 405 m²

L'extérieur :

  • Parking

Autres :

  • Vue :
    Dégagée

Terrain :

  • Viabilisé :
    Non
Synthèse
Terrain à Le Tampon
113 000 €
Surface : 405 m²
Prix au m² : 279 €
Transaction :
Achat
Référence :
VT1074-EXPFRANCE
Disponibilité :
12/12/2025
Date de publication :
Aujourd'hui à 07:06
Terrain - 405 m²
Agent
eXp France
eXp France
José STANCA
Appeler
Écrire
Mettre en avant cette annonce
Signaler une erreur

Localisation :

L'adresse exacte n'est pas renseignée. Le bien se situe dans cette zone.
Annonces similaires
Annonces immobilières récentes