Maison de village - 94 m² - 4 pièces au Taillan-Médoc

favoris
  • Maison de village - 94 m² - 4 pièces
  • Maison de village - 94 m² - 4 pièces
  • Maison de village - 94 m² - 4 pièces
413 000 €
94 m²
4 pièces
3 chambres

Description :

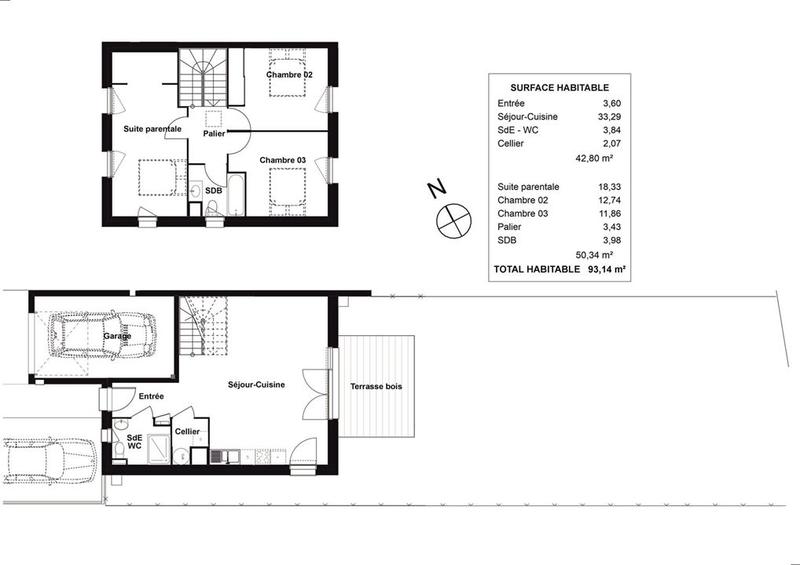
Maison T4, à étage, de 94 m² habitables, avec garage, dans un petit hameau, à 500 m du centre commercial et du collège du Taillan. Sur un terrain de 288 m², au calme en fond de programme, elle est accolée à une autre sur un côté. Elle se compose, au rez-de-chaussée, d'une entrée, d'un séjour-cuisine ouvrant sur le jardin par une large baie, d'un cellier, d'une salle d'eau et d'un garage. À l'étage, d'une chambre parentale avec dressing, de deux chambres et d'une salle de bains. Conforme à la règlementation thermique RE2020, le chauffage-rafraichissement sera assuré par une pompe à chaleur et la production d'eau chaude par un chauffe eau thermodynamique. Le hameau compte 46 logements, la taxe foncière sera de 1900 euros, les charges mensuelles de 30 euros et les honoraires sont à la charge du vendeur. La maison sera disponible début 2027. Les informations sur les risques auxquels de bien est exposé sont disponibles sur le site Géorisques: www.georisque.gouv.fr

Afficher plus de détails

Informations sur ce bien :

L'intérieur :

  • 4 pièces
  • 94 m²
  • 3 Chambres
  • 1 Salle de bain
  • 1 Salle d'eau
  • 2 Toilettes

L'extérieur :

  • Terrasse
  • Parking
  • Box

Les équipements :

  • Climatisation

Autres :

  • Année de construction :
    2027
  • État :
    Refait à neuf
  • Exposition :
    Sud, Est
  • Étage :
    RDC

Copropriété :

  • Copropriété :
    Oui
  • Nombre de lots :
    46
  • Charges annuelles :
    360 €
Synthèse
Maison de village à Le Taillan-Médoc
413 000 €
Surface : 94 m²
Prix au m² : 4 394 €
Transaction :
Achat
Référence :
94
Date de publication :
Il y a plus de 7 jours
Maison de village - 94 m² - 4 pièces
Agent
Agence BIP
Agence BIP
Appeler
Écrire
Mettre en avant cette annonce
Signaler une erreur

Localisation :

L'adresse exacte n'est pas renseignée. Le bien se situe dans cette zone.

Performance énergétique :

Bien non soumis au Diagnostic de Performance Énergétique (DPE)

Annonces similaires
Annonces immobilières récentes