• Appartement - 59 m² - 3 pièces
  • Appartement - 59 m² - 3 pièces
  • Appartement - 59 m² - 3 pièces
  • Appartement - 59 m² - 3 pièces
312 000 €
59 m²
3 pièces
2 chambres

Description :

- TRÈS PEU DE LOTS RESTANTS, DU T2 AU T4, CONTACTEZ-NOUS POUR VOUS PRÉSENTER LES LOTS DISPONIBLES -
Au coeur du Pradet, se trouve cette superbe résidence au calme, située boulevard de Lattre de Tassigny. À proximité de toutes commodités (commerces, cabinets médicaux, écoles, plages...). 
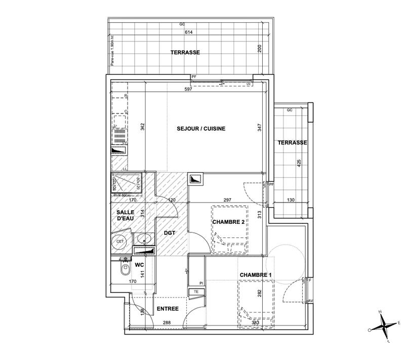
L'appartement de 3 pièces de 58,62 m2 se compose d'une entrée, d'un séjour cuisine de 20,34 m2 ouvrant sur une belle terrasse de 12 m2 avec vue dégagée.
Deux chambres : une de 12 m2 avec placard et une de 9 m2 avec sa terrasse de 6 m2. Une salle d'eau de 4 m2 et un wc indépendant. 
Les + : prestations haut de gamme : choix du carrelage grand format ou parquet, meuble de salle de bain suspendu...
Une cave et un garage viennent compléter l'appartement.  Livraison 3ème trimestre 2023. Éligible Prêt à Taux 0% et dispositif PINEL. 

Afficher plus de détails

Informations sur ce bien :

L'intérieur :

  • 3 pièces
  • 59 m²
  • 2 Chambres
  • Sans cuisine
    Informations complémentaires
    Sans cuisine
  • 1 Salle d'eau
  • 1 Toilette
  • Séjour de 20 m²
  • Cave

L'extérieur :

  • 2 Terrasses
  • Parking
  • Box

Les équipements :

  • Ascenseur
  • Accès handicapé

Autres :

  • Chauffage :
    Individuel, Électrique
  • Année de construction :
    2023
  • Étage :
    RDC

Copropriété :

  • Copropriété :
    Oui
Synthèse
Appartement à Le Pradet
312 000 €
Surface : 59 m²
Prix au m² : 5 288 €
Transaction :
Achat
Référence :
38
Date de publication :
Il y a plus de 7 jours
Appartement - 59 m² - 3 pièces
Agent
BOERO PATRIMOINE
BOERO PATRIMOINE
Appeler
Écrire
Mettre en avant cette annonce
Signaler une erreur

Localisation :

L'adresse exacte n'est pas renseignée. Le bien se situe dans cette zone.

Performance énergétique :

Bien non soumis au Diagnostic de Performance Énergétique (DPE)

Annonces similaires
Annonces immobilières récentes